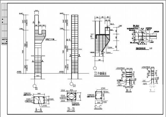
单层钢混结构厂房建筑结构施工大样图(7度抗震)
- 发布时间:2021-11-30
- 评论次数:0
- 浏览次数:0
- 文件大小:0.93 MB
- 收藏次数:0
-
文件名称:
附件-995878576958790079889.rar
厂房建筑结构下载
- 钢混结构厂房建筑结构施工大样图.
- 20米跨单层工业厂房建筑结构施工图纸(6度抗震)
- 单层钢混组合厂房结构施工图纸【结构设计总说明】
- 单层钢管钢桁架厂房结构施工图纸(6度抗震)
- 单层钢排架厂房结构CAD施工图纸(6度抗震)
- 钢混厂房结构设计施工图纸(7度抗震)
- 单层钢混框架结构动力用房结构CAD施工大样图
- 排架结构钢混单层厂房设计图纸(屋顶平面图)
- 铸造车间预应力单层门式刚架钢混厂房结构CAD图纸
- 单层钢结构厂房建筑结构施工CAD图纸
- 单层砖混结构厂房结构CAD施工图纸(毛石基础6度抗震)(平面布置图)
- 6度抗震单层钢结构厂房建筑结构CAD施工图纸(基础平面图)
- 单层工业厂房建筑结构CAD施工图纸
- 单层轻钢厂房建筑结构设计CAD施工大样图
- 单层钢网架厂房结构CAD施工图纸(2016)
- 单层钢排架厂房结构CAD施工图纸
- 单层混凝土柱钢屋架厂房结构设计施工大样图
- 单层钢框架结构厂房全套施工大样图2016
- 多层钢混组合厂房结构施工构图纸
- 多层钢混组合厂房结构施工构CAD图纸
全部评论
评论网友评论仅友表达个人看法,并不表明本站同意其观点,不得发布违反法律法规的内容!
