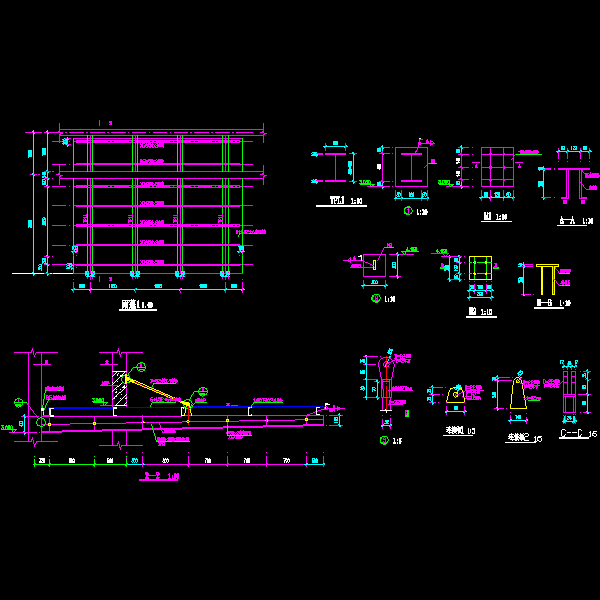
雨篷节点构造详细设计CAD图纸
- 发布时间:2023-11-30
- 评论次数:0
- 浏览次数:0
- 文件大小:0.06 MB
- 收藏次数:0
-
文件名称:
附件-995797870589776878.rar
相关下载
- 雨篷及过梁节点构造详细设计CAD图纸
- 玻璃雨篷节点构造详细设计CAD图纸
- 钢结构雨篷节点构造详细设计CAD图纸
- 矩形玻璃雨篷节点构造详细设计CAD图纸
- 点式雨篷节点构造详细设计CAD图纸
- 网架结构雨篷节点构造详细设计CAD图纸
- 室外雨篷结构节点构造详细设计CAD图纸
- 网架详细设计CAD图纸之雨篷节点构造详细设计CAD图纸
- 雨篷节点构造详图纸(二)
- 雨篷节点构造详图纸(三)
- 雨篷节点构造详图纸(四)
- 雨篷节点构造详图纸(一)
- 雨篷节点构造详图纸cad
- 点式玻璃雨篷节点详细设计CAD图纸
- 点式雨篷节点详细设计CAD图纸
- 餐厅玻璃幕墙及轻钢雨篷设计节点构造详细CAD图纸
- 推拉门及雨篷节点构造详细设计CAD图纸(预埋件)
- 隐框幕墙铝板雨篷节点构造详细设计CAD图纸
- 点式玻璃雨篷节点构造详细设计CAD图纸
- 钢结构女儿墙及雨篷节点构造详细设计CAD图纸
全部评论
评论网友评论仅友表达个人看法,并不表明本站同意其观点,不得发布违反法律法规的内容!
