admin
|
退出
|
登录
|
注册
|
0
积分
|
赚取积分
|
VIP领取积分
|
帮助中心
|
首页
【知石网】是一个专业资料分享学习平台,本站提供大量施工技术文档和设计下载。
首页
施工图纸
施工方案
施工组织
施工交底
合同表格
建筑结构
节点详图
毕业设计
平面图纸
景观设计
电气知识
环保知识
您当前位置:
首页
»
建筑结构
»
钢结构施工图
»
钢结构雨篷节点构造详图纸
钢结构雨篷节点构造详图纸
资料简介
赚取积分
搜索更多资源
附件详情
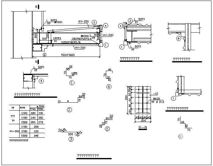
某钢结构雨篷节点构造详图(四),共1张图纸
以下是附件的其中一部分截图,共1张,您也可以
搜索
更多您想要的资源
第 1 张图
以上是部分截图,请下载附件后查看完整高清内容
发布时间:2022-02-20
评论次数:0
浏览次数:0
文件大小:0.04 MB
收藏次数:0
文件名称:
附件-996055069997790588.rar
下载信息
加入收藏
赚取积分
立即下载
对不起,系统繁忙,请稍后再试,或联系管理员
对不起,您的积分余额不足,请
充值积分
恭喜购买成功!请
下载文件
相关下载
钢结构雨篷节点构造详图纸
钢结构雨篷节点构造详图纸
钢结构雨篷节点构造详图纸
钢结构雨篷节点构造详细设计CAD图纸
钢结构雨篷节点构造CAD详图纸
雨篷钢结构节点构造CAD详图纸
雨篷节点构造详图纸(二)
雨篷节点构造详图纸(三)
雨篷节点构造详图纸(四)
雨篷节点构造详图纸(一)
雨篷节点构造详图纸cad
钢结构厂房雨篷构造CAD详图纸
钢结构雨篷铝单板幕墙节点图纸
铝板雨篷节点图纸
扇形雨篷结构详大样图
钢结构雨篷详图纸
钢结构雨篷施工图纸.
单元入口雨篷平面节点构造详图纸
雨篷配筋节点构造详图纸
雨篷及过梁节点构造详细设计CAD图纸
全部评论
评论
网友评论仅友表达个人看法,并不表明本站同意其观点,不得发布违反法律法规的内容!
下载排行
玻璃雨篷节点构造详细设计CAD图纸
雨篷节点构造详细设计CAD图纸
矩形玻璃雨篷节点构造详细设计CAD图纸
点式雨篷节点构造详细设计CAD图纸
网架结构雨篷节点构造详细设计CAD图纸
室外雨篷结构节点构造详细设计CAD图纸
雨篷及过梁节点构造CAD详图纸
砌体结构雨篷节点构造CAD详图纸
屋顶及雨篷节点构造CAD详图纸
设备车间雨篷节点构造详图纸cad
下载推荐
雨篷节点构造详图纸cad平面图
玻璃雨篷节点构造详图纸cad
钢结构女儿墙及雨篷节点构造详细设计CAD图纸
钢结构推拉门、天沟挡板、雨篷设计节点构造详细CAD图纸(二)
钢结构推拉门、天沟挡板、雨篷设计节点构造CAD详图纸(一)
钢结构玻璃雨篷的结构节点构造CAD详图纸.dwg
5m钢结构雨篷节点构造详图纸cad布置图
5m钢结构雨篷节点构造详图纸cad
钢结构檩条及雨篷节点构造详图纸cad
钢结构雨篷大样800
网站首页
|
信息产业部备案/许可证编号:苏ICP备2021052619号-1
苏公网安备:32041102001778号
本站所有内容均由网友自主分享,仅供学习和参考,如有侵权内容或者违法行为,请及时联系站长删除。