污水处理工程竹胶合模板专项施工方案(回流污泥泵房)

附件详情

  • 目录
  • 1. 项目概要: 1
  • 2. 施工准备 1
  • 2.1. 材料准备和要求: 1
  • 2.2. 机具准备: 1
  • 2.3. 作业条件: 1
  • 3. 施工方案 1
  • 3.1. 构筑物部分 1
  • 3.1.1. 水解均质池及氧化沟模板 1
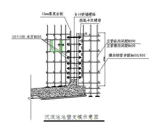
  • 3.1.2. 沉淀池模板 7
  • 3.1.3. 支撑系统: 9
  • 3.1.4. 模板拆除: 10
  • 3.2. 建筑物部分 10
  • 3.2.1. 操作工艺和技术要求 10
  • 3.2.2. 支撑系统: 11
  • 3.2.3. 施工方法 11
  • 3.2.4. 应达到的质量标准要求 14
  • 4. 成品保护 16
  • 5. 质量保证措施 17
  • 5.1. 技术准备及 技术交底 17
  • 5.2. 材料 质量控制 17
  • 5.3. 模板安装观感质量 17
  • 5.4. 模板制作的标准 18
  • 5.5. 施工质量过程控制 18
  • 5.6. 模板施工 质量通病 及防治 19
  • 6. 安全注意事项 20
  • 7. 雨季施工措施 21
  • 7.1. 脚手架工程 21
  • 7.2. 模板工程 21

附件详情

该项目为废水处理工程,每小时处理水量2.5万m3。场区占地45亩。构筑物部分主要项目包括:沉淀池二座,水解均质池及氧化沟二座,粗格栅及进水泵房、回流污泥泵房各一座,其中沉淀池为圆形构筑物,池壁高度为4.5m,壁厚均为400mm;水解均质池及氧化沟为钟形构筑物,池壁高度6m,壁厚为400mm,建筑设计结构形式为现浇钢筋砼结构,建筑物部分主要包括机修间及变配电间、综合楼,属于框架结构
……
2. 施工准备
2.1. 材料准备和要求:
(1) 模板:竹胶合板,复合板。
(2) 连接件:3型扣件,止水型对拉螺栓、步步紧(卡具)等。
(3) 支撑件:钢架管
……
3. 施工方案
3.1. 构筑物部分
3.1.1. 水解均质池及氧化沟模板
由于该单体工程建筑设计结构形式复杂,工期紧,为了达到要求工期,我方决定该两座构筑物采取平行 施工工艺 。故使一次性投入模板量增加,周转次数减少。
每座该单体构筑物所需12mm厚复合板4146平方米,方木103m3,Φ14穿墙螺栓13700根。
3.1.1.1 底板模板
(1) 池壁处模板施工
在底板与池壁的接口处,采用吊模的施工方法留出施工缝,施工缝留置位置为底板以上60cm,施工缝预留止水钢板,钢板采用搭接焊且搭接长度不小于2cm。
两侧均采用木模板,该段模板高度为60cm,内侧有0.3×0.3m的加强角,上部模板则垂直于底板,外侧模板垂直于底板。内侧模板预先加工成型;圆弧段模板将根据设计图纸制作成相应弧度的定型模板,背面加50×100mm木方做竖肋,木方中心间距300mm。
施工方法为:采用吊模施工,在池壁立筋上焊φ12短钢筋用以支撑模板,钢筋间距1米,内侧模板底部用钢筋马凳支撑,间距1000mm,内外模板加设一排对拉螺栓,间距500mm,上口用卡具,以保证池壁断面尺寸,再用斜撑与基坑侧壁撑牢。
……
3.1.1.3 走道板、梁及其他模板施工
该工程模板均采用木模板,幅面0.9×1.8、1.2×2.4两种。对于特殊部位的模板,采用现场加工制作的木模板,以确保其几何尺寸满足设计要求。板底均采用50×50小楞,间距250,外框架梁截面宽度内缩5mm。所有跨度≥4米的梁,起拱1‰—3‰;连续梁支模时,应拉通线,防止出现轴线偏移。
……
字数约1万字
9月



以下是附件的其中一部分截图,共3张,您也可以 搜索 更多您想要的资源
  • 污水处理工程竹胶合模板专项施工方案(回流污泥泵房) - 1
    第 1 张图
  • 污水处理工程竹胶合模板专项施工方案(回流污泥泵房) - 2
    第 2 张图
  • 污水处理工程竹胶合模板专项施工方案(回流污泥泵房) - 3
    第 3 张图
以上是部分截图,请下载附件后查看完整高清内容
网站首页  | 
本站所有内容均由网友自主分享,仅供学习和参考,如有侵权内容或者违法行为,请及时联系站长删除。