单跨下承式系杆拱桥施工方案(道路)

附件详情

  • 第一章 编制说明 ………………………………………………………………… 4
  • 第二章 项目概要 ………………………………………………………………… 4
  • 第三章 施工总体布署 …………………………………………………………… 8
  • 第四章 施工方案、施工方法 …………………………………………………… 11
  • 第一节 总体 施工工艺 流程…………………………………………………… 11
  • 第二节 钻孔灌注桩施工 …………………………………………………… 14
  • 第三节 承台及连系梁施工 ………………………………………………… 20
  • 第四节 台柱、盖梁施工 …………………………………………………… 22
  • 第五节 大型临时工程施工方案 …………………………………………… 24
  • 第六节 现浇箱梁 的施工方案 …………………………………………………28
  • 第七节 主拱结构施工 …………………………………………………………37
  • 第五章 确保工程质量和工期的措施……………………………………………… 40
  • 第一节 确保工程质量的措施 …………………………………………………40
  • 第二节 保证工期的措施 ………………………………………………………44
  • 第六章 质量、安全保证体系 …………………………………………………… 50
  • 第一节 质量保证体系 …………………………………………………………50
  • 第二节 安全保证体系………………………………………………………… 55
  • 第七章 文明施工、环境保护 …………………………………………………… 58
  • 第一节 现场文明施工措施 …………………………………………… 58
  • 第二节 环境保护措施……………………………………………………… 60
  • 第三节 生活区卫生设施…………………………………………………… 62
  • 第四节 宣传工作 ……………………………………………………… 63
  • 第五节 消防治安措施……………………………………………………… 64

附件详情

项目概要
XX桥,中心桩号位于DXK3+121.347处,桥梁道路中心线法线方向与河道中心线夹角8.6°,桥梁正交布置,本河道上口宽约50米,河底宽32米,无通航要求。主要技术标准:
1、道路等级:城市支路,汽车荷载等级:城-B级;人群荷载:按照CJJ 11-近代第10.0.5条取值。
2、桥梁横断面布置:
桥梁横断面分配为:2m(人行道)+2.5m(分隔带)+15m(机非混合车道)+2.5m(分隔带)+2m(人行道)=24m。
3、桥跨布置及线型:
本桥梁为单跨系杆拱桥,桥梁跨径50m(不含背墙),桥面总宽24米,桥梁道路中心线法线方向与河道中心线夹角8.6°,桥面横坡:行车道横坡:1.0%;人行道横坡:反向2.0%;
4、桥面铺装:
桥面铺装由上至下分别为:4cm细粒式沥青混凝土(AC-13C)+ 6cm中粒式沥青混凝土(AC-20C)+高效有机硅防水剂(用量:0.4~0.6kg/m2 )+10cmC50桥面铺装层(抗渗等级W6,内含D10冷轧带肋焊接钢筋网)。桥面两层沥青之间应设粘层油,黏层沥青采用乳化沥青,洒布数量为0.3~0.5kg/m2。
……
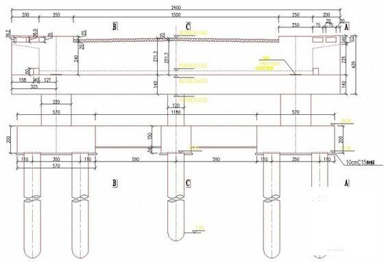
本桥梁为单跨下承式系杆拱桥,桥梁跨径50m(不含背墙),计算跨径46.94米,桥面总宽24米。主拱矢跨比为f/L=1/5.3,拱轴线形式为二次抛物线,拱肋采用钢管砼,断面形式为圆端形扁钢管,横向宽度为1.5m,竖向高度为1.0m。钢管由厚度为16mm的 (Q345qC)钢板制成,拱肋内灌C50砼,形成钢管砼结构。副拱为装饰拱,拱轴线为圆弧形,拱肋采用直径为0.5m圆形钢管。钢管由厚度为6mm的 (Q345qC)钢板制成。主拱与副拱之间有装饰钢片连接。
系梁断面为箱形结构,采用预应力来平衡拱肋的水平推力,吊杆采用工厂定型生产的PES(C)5-073成品索(Rby=1670MPa),配合相应的冷铸镦头锚,现场安装,吊杆间距3.3m
桥梁总体布置图
桥梁上部为单跨单箱多室预应力箱梁,吊索处梁高1.6米,箱梁翼缘板悬臂长2.0m。箱梁顶板厚度25cm,底板厚度为25cm,桥梁横坡由桥面顶板形成,箱梁底板为平坡。箱梁为后张法预应力构件,采用临时钻孔灌注桩加贝雷梁支撑现浇施工。预应力管道由预埋镀锌金属波纹管形成,预应力钢绞线采用φs15.20型。
下部结构,桥台采用桩接承台加立柱的形式,承台间采用系梁连接。桩基均采用钻孔灌注桩,按摩擦桩设计。桩基施工终孔后,应及时清孔并灌注砼,沉碴厚度不大于15cm。对完成的各钻孔桩应按规定进行质量检测。按规范要求进行检测,每根桩都进行低应变检测。高应变检测具体桩位按规范要求由质检、业主、监理、设计等部门共同确定。桥台承台桩基单桩容许承载力为4500KN。其中系梁下桩基单桩容许承载力为1500KN。
……
,共82页3万5千字。

以下是附件的其中一部分截图,共4张,您也可以 搜索 更多您想要的资源
  • 单跨下承式系杆拱桥施工方案(道路) - 1
    第 1 张图
  • 单跨下承式系杆拱桥施工方案(道路) - 2
    第 2 张图
  • 单跨下承式系杆拱桥施工方案(道路) - 3
    第 3 张图
  • 单跨下承式系杆拱桥施工方案(道路) - 4
    第 4 张图
以上是部分截图,请下载附件后查看完整高清内容
全部评论
评论网友评论仅友表达个人看法,并不表明本站同意其观点,不得发布违反法律法规的内容!
网站首页  | 
本站所有内容均由网友自主分享,仅供学习和参考,如有侵权内容或者违法行为,请及时联系站长删除。