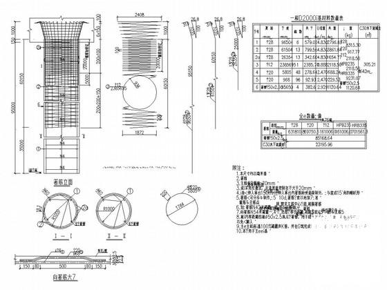
特大下承式钢结构系杆拱桥下部结构施工图纸
- 发布时间:2022-02-20
- 评论次数:0
- 浏览次数:0
- 文件大小:2.16 MB
- 收藏次数:0
- 
								文件名称: 附件-995788950788777876.rar 附件-995788950788777876.rar
								相关下载
							
						- 特大下承式钢结构系杆拱桥下部结构设计施工图纸
- 特大型下承式钢结构系杆拱桥桥面系CAD施工图纸(141张).dwg
- 特大下承式钢结构系杆拱桥下部结构CAD施工方案图纸(交通建筑)
- 特大下承式钢结构系杆拱桥下部结构CAD施工图纸(桥梁全长318米).dwg
- 下承式钢结构系杆拱桥边墩设计CAD图纸
- 市政下承式钢管混凝土提篮式系杆拱桥.dwg
- 单孔56米跨径下承式系杆拱桥CAD施工图纸.dwg
- 三跨上承式系杆拱桥承台施工方案(钢板桩)
- 100m下承式钢管砼系杆拱桥全桥CAD施工图纸(57张).dwg
- 90米跨径下承式系杆刚架拱桥设计套CAD图纸(49张)
- 单跨70米三片拱肋下承式系杆拱桥设计CAD图纸(47张)
- 特大桥工程下承式钢管混凝土系杆拱桥结构施工方案(中交).doc
- 单跨下承式系杆拱桥施工方案(道路)
- 99m钢管混凝土下承式系杆拱大桥设计CAD图纸
- 下承式钢管混凝土系杆拱桥CAD施工图纸(130张).dwg
- 下承式双幅钢管混凝土系杆拱桥CAD施工图纸(引桥).dwg
- 380m中承式系杆拱桥系杆端部及预埋钢管分布钢筋构造CAD详图纸设计
- 主跨90m下承式系杆拱桥全套施工图纸构造图及布置图
- 主跨90m下承式系杆拱桥全套CAD施工图(86页图纸,总宽26米).dwg
- 下承式系杆拱80.3m跨径桥全套CAD施工图纸.dwg
全部评论
						
							评论网友评论仅友表达个人看法,并不表明本站同意其观点,不得发布违反法律法规的内容!
						
						
