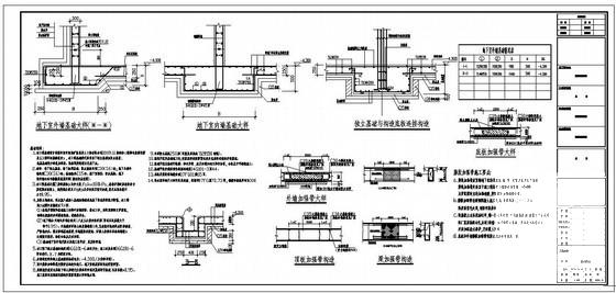
单建式人防地下室结构设计施工图纸
- 发布时间:2021-12-01
- 评论次数:0
- 浏览次数:0
- 文件大小:0.88 MB
- 收藏次数:0
-
文件名称:
附件-995877065777995787575.rar
地下室设计施工图纸下载
- 地下室人防结构安全设计施工图纸
- 地下室通风排烟设计施工图纸
- 地下室人防通风设计CAD施工图纸
- 地下室通风排烟设计CAD施工图纸
- 地下室换热站设计施工图纸
- 地下室外墙结构设计初探(高层建筑地下室).pdf
- 地下室通风施工CAD图纸
- 地下室通风施工CAD图纸
- 地下室施工节点图纸(Word).
- 浅谈地下室结构施工.pdf
- 地下室人防构件节点详细设计CAD图纸
- 人防地下室基坑支护设计CAD图纸
- 地下室防水设计构造CAD详图纸
- 小区地下室通风图纸(设计说明).dwg
- 地下室人防设计施工方案图纸及设计说明CAD
- 地下室墙体大样节点设计构造详图
- 浅谈大型地下室结构设计.pdf
- 地下室人防结构设计探讨.pdf
- 住宅小区设计说明(地下室车库)
- 地下室结构设计总说明
全部评论
评论网友评论仅友表达个人看法,并不表明本站同意其观点,不得发布违反法律法规的内容!
