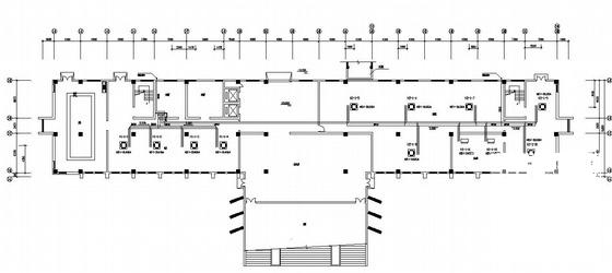
15443平米7层法院审判综合楼空调平面施工图纸
- 发布时间:2021-11-30
- 评论次数:0
- 浏览次数:0
- 文件大小:0.57 MB
- 收藏次数:0
- 
								文件名称: 附件-995858796868896098576.rar 附件-995858796868896098576.rar
								法院施工图下载
							
						- 法院综合审判楼空调施工图纸
- 法院审判大楼空调平面图(15页大样图).dwg
- 法院审判楼建筑CAD施工图纸
- 法院审判厅建筑CAD施工图纸(墙身大样)
- 县12900平米人民法院审判楼空调施工图纸
- 9520平米地上9层法院审判楼空调施工图纸
- 法院审判庭空调通风设计CAD施工图纸
- 法院审判楼外幕墙施工组织设计
- 法院审判法庭综合大楼结构设计.pdf
- 5678平米地上6层法院审判楼采暖施工图纸
- 4层法院审判楼建筑施工CAD图纸(钢筋混凝土结构)
- 济源法院审判庭玻璃幕墙工程施工组织设计
- 法院26层业务综合楼空调设计施工图纸
- 法院高层业务综合楼空调设计施工CAD图纸(BRV系统)
- 法院设计平面CAD施工图纸
- 13000平米地上8层法院暖通空调平面施工图纸
- 城市中级人民法院综合审判庭建筑结构大样图
- 城市中级人民法院综合审判楼超长结构设计.pdf
- 法院VRV系统平面CAD图纸
- 6层法院综合楼电气全套CAD图纸
全部评论
						
							评论网友评论仅友表达个人看法,并不表明本站同意其观点,不得发布违反法律法规的内容!
						
						
 
	              	 
	              	 
	              	