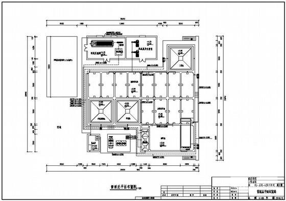
公司制革废水处理工程CAD施工图纸
- 发布时间:2023-02-20
- 评论次数:0
- 浏览次数:0
- 文件大小:2.4 MB
- 收藏次数:0
-
文件名称:
附件-995860989907850799785.rar
相关下载
- 公司制革废水处理工程施工图纸
- 公司制革废水处理氧化沟工艺大样图
- 碳酸饮料公司废水处理设计施工图纸
- 公司淀粉废水处理工程全套CAD施工图纸
- 纺织公司废水处理工艺全套CAD施工图纸
- 亚麻公司生产废水处理工艺CAD图纸
- 公司80t磷化废水处理设计图纸.dwg
- 医药公司废水处理工程图纸.
- 喷漆废水处理工程施工图纸(施工方案)
- 废水处理工程施工图纸布置图
- 屠宰废水处理工程施工图纸.
- 公司电气工程施工方案
- 公司车间屋顶改造工程施工方案
- 某玻璃厂废水处理工程施工图纸池底平面布置图
- 印染废水处理CAD图纸
- 农业装备公司磷化污水处理工程施工图纸
- 2层公司房屋接建改造工程施工图纸,共5张
- 公司热电站高压蒸汽采暖改造工程施工图纸
- 远达石材公司门式刚架轻型房屋钢结构工程施工CAD图纸
- 公司门式钢结构工程施工图纸(CAD,10张)
全部评论
评论网友评论仅友表达个人看法,并不表明本站同意其观点,不得发布违反法律法规的内容!
