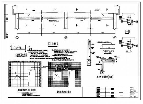
啤酒公司包装二线车间加固设计施工大样图
- 发布时间:2021-11-30
- 评论次数:0
- 浏览次数:0
- 文件大小:0.19 MB
- 收藏次数:0
- 
								文件名称: 附件-995877875897078898089.rar 附件-995877875897078898089.rar
								加固施工公司下载
							
						- 啤酒有限公司罐装车间结构加固设计图纸
- 食品公司包装车间雨篷结构大样图
- 啤酒公司建筑修缮工程设计回顾(装饰艺术)
- 食品公司包装车间网架结构施工图纸.dwg
- 包装公司厂房建筑施工CAD大样图、效果大样图
- 包装车间建筑结构CAD施工大样图
- 物流公司储蓄车间大样图.
- 包装制品公司厂房强电CAD图纸(建筑抗震设防)
- 印刷包装公司规划方案(验收记录)_CAD
- 建材公司成品及包装库钢结构车间CAD图纸(给排水平面图)
- 百威国际啤酒发酵罐全套施工大样图(发酵车间及CIP间).
- 5层仓储物流包装车间结构设计施工图纸
- 5层仓储物流包装车间结构设计CAD施工图纸
- 3层包装公司办公楼暖通设计CAD施工图纸
- 2层甲级院_包装更衣车间电气施工图纸
- 2层框架结构包装更衣车间施工图纸2017
- 一套工厂包装车间钢结构施工方案
- 2层车间加固设计施工大样图,共3张
- 建材公司烧成车间结构设计施工大样图(8度抗震)
- 建材公司烘干车间全套结构设计施工大样图
全部评论
						
							评论网友评论仅友表达个人看法,并不表明本站同意其观点,不得发布违反法律法规的内容!
						
						
 
	              	 
	              	