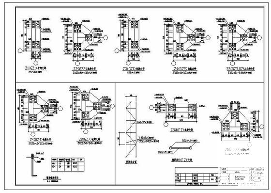
建材公司烧成车间结构设计施工大样图(8度抗震)
- 发布时间:2021-11-29
- 评论次数:0
- 浏览次数:0
- 文件大小:1.33 MB
- 收藏次数:0
-
文件名称:
附件-995878750780887055658.rar
烧成车间设计下载
- 建材公司烧成车间结构设计CAD大样图
- 建材公司抛光车间结构设计施工大样图(8度抗震)
- 建材公司烘干车间全套结构设计施工大样图
- 建材公司成品仓库结构设计施工大样图(8度抗震)
- 建材公司抛光车间结构设计CAD大样图
- 建材公司烘干车间全套CAD施工大样图
- 建材公司成品仓库结构设计CAD大样图
- 物流公司储蓄车间大样图.
- 3层建材公司办公楼全套结构设计施工大样图
- 3层建材公司办公楼全套CAD施工大样图
- 建材厂车间结构设计CAD施工图纸
- 建材公司门式刚架餐厅培训楼结构设计施工图纸
- 建材公司门卫室及食堂全套建筑结构设计施工图纸
- 水泥公司烧成窑中及三次风管结构设计施工图纸
- 建材公司成品及包装库钢结构车间CAD图纸(给排水平面图)
- 建材公司大门文化墙及地磅结构CAD图纸
- 建材公司出釜区钢结构厂房CAD图纸
- 建材公司餐厅培训楼结构设计CAD图纸
- 烧成窑头结构设计方案图纸
- 建材厂车间结构设计施工图纸(地上1层,共9张)
全部评论
评论网友评论仅友表达个人看法,并不表明本站同意其观点,不得发布违反法律法规的内容!
