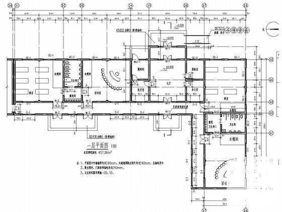
砖混结构校园幼儿园结构CAD施工图纸(建筑图纸)
- 发布时间:2023-01-23
- 评论次数:0
- 浏览次数:0
- 文件大小:1.42 MB
- 收藏次数:0
-
文件名称:
附件-995879965807565065799.rar
相关下载
- 砖混结构校园幼儿园结构CAD施工图纸(建筑图纸)
- 砖混结构幼儿园加固CAD施工图纸()(多层建筑)
- 3层幼儿园建筑方案设计图纸(砖混结构)
- 砖混结构2层6班幼儿园建筑设计图纸.dwg
- 3层砖混结构幼儿园抗震加固改造结构CAD施工图纸
- 3层砖混结构幼儿园抗震加固改造结构CAD施工图纸
- 砖混结构别墅施工建筑结构CAD图纸
- 3层砖混幼儿园结构CAD施工图纸(建施)
- 3层砖混结构幼儿园加固改造CAD施工方案图纸
- 3层云海花园幼儿园砖混结构CAD施工图纸
- 砖混结构3层别墅建筑施工CAD图纸
- 不规则住宅建筑施工CAD图纸(砖混结构)
- 砖混结构单层平房建筑CAD施工图纸
- 单层门卫建筑CAD施工图纸(、砖混结构)
- 单层砖混结构公厕建筑施工图纸.
- 砖混结构独栋别墅建筑施工CAD图纸
- 两层砖混结构六班幼儿园建筑施工CAD图纸(卫生间详图)
- 3层砖混结构幼儿园加固CAD施工图纸(、11张)(民用建筑设计)
- 砖混结构九班幼儿园建筑施工CAD图纸(卫生间大样)
- 幼儿园砖混结构设计CAD施工大样图
全部评论
评论网友评论仅友表达个人看法,并不表明本站同意其观点,不得发布违反法律法规的内容!
