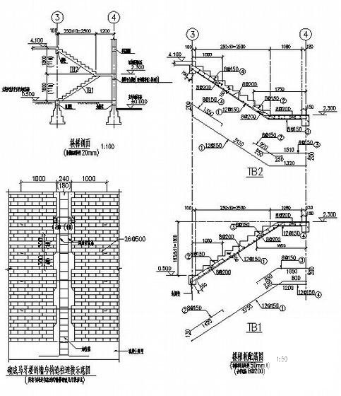
2层砖混结构农村小住宅楼建筑结构CAD施工图纸(砌体结构)
- 发布时间:2023-01-23
- 评论次数:0
- 浏览次数:0
- 文件大小:0.61 MB
- 收藏次数:0
-
文件名称:
附件-995879985858797070756.rar
相关下载
- 3层砖混结构新农村住宅楼建筑结构设计施工图纸
- 2层砖混结构农村小住宅楼建筑结构CAD施工图纸
- 3层砖混新农村住宅建筑结构CAD施工图纸
- 3层砖混新农村住宅建筑结构CAD施工图纸
- 砖混结构2层坡屋顶小办公楼建筑结构CAD图纸
- 砖混结构2层坡屋顶小办公楼建筑结构CAD图纸
- 3层农村砖混结构住宅楼结构设计施工图纸
- 农村砖混住宅结构CAD施工图纸
- 砖混砌体结构大门结构施工图纸
- 3层砌体结构住宅楼建筑结构CAD施工图纸(坡屋面农村住宅楼)
- 6层砌体结构砖混住宅楼结构设计施工图纸
- 3层新农村独栋别墅砖混结构
- 砖混结构别墅施工建筑结构CAD图纸
- 新农村建设砖混结构2层农村住宅楼建筑方案设计CAD图纸
- 6层砖混结构住宅楼建筑结构施工图纸
- 6层砖混结构住宅楼建筑结构CAD施工图纸
- 3层砖混结构住宅楼建筑结构CAD施工方案图纸
- 2层新农村住宅楼建筑结构水暖电CAD施工图纸(砌体结构)
- 6层砖混结构住宅楼建筑结构施工大样图
- 5层农村别墅建筑结构施工图纸(砌体结构)
全部评论
评论网友评论仅友表达个人看法,并不表明本站同意其观点,不得发布违反法律法规的内容!
