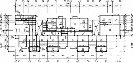
6度区坡屋顶桩基础砖混住宅结构CAD施工图纸
- 发布时间:2023-01-20
- 评论次数:0
- 浏览次数:0
- 文件大小:0.76 MB
- 收藏次数:0
-
文件名称:
附件-995879807855696656507.zip
相关下载
- 6层6度区坡屋顶桩基砖混住宅结构CAD施工图纸
- 砖混坡屋顶私人住宅CAD施工图纸
- 7层条形基础坡屋顶砖混结构住宅楼结构CAD施工图纸
- 7层砖混结构住宅楼建筑施工CAD图纸(英红瓦坡屋顶)
- 坡屋顶住宅楼(底层门市)CAD施工图纸(砖混结构)
- 砖混坡屋顶跃层住宅结构设计方案CAD图纸
- 6层砖混坡屋顶住宅结构设计说明
- 两层砖混结构坡屋顶办公楼结构CAD施工图纸(条形基础)
- 3层砖混坡屋顶私人住宅楼全套施工大样图
- 两层砖混结构坡屋顶办公楼结构CAD施工图纸
- 2层条形基础砖混别墅结构CAD施工图纸(坡屋顶)(平面布置图)
- 2层坡屋顶砖混别墅结构CAD施工图纸
- 3层砖混小别墅建筑结构CAD施工图纸(坡屋顶)
- 2层小型坡屋顶别墅砖混结构CAD施工图纸()
- 2层坡屋顶别墅砖混结构CAD施工图纸()
- 砖混结构2层坡屋顶小办公楼建筑结构CAD图纸
- 砖混结构2层坡屋顶小办公楼建筑结构CAD图纸
- 5层砖混结构坡屋顶跃层住宅楼结构设计施工图纸
- 4层带坡屋顶砖混结构住宅楼建筑结构全套施工图纸
- 带坡屋顶的砖混结构CAD图纸(平面布置图)
全部评论
评论网友评论仅友表达个人看法,并不表明本站同意其观点,不得发布违反法律法规的内容!
