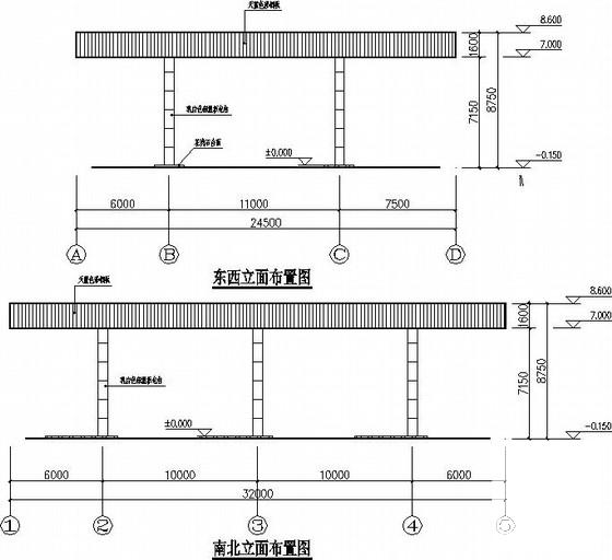
1层钢结构门头房建筑结构CAD施工图纸
- 发布时间:2023-01-20
- 评论次数:0
- 浏览次数:0
- 文件大小:1.24 MB
- 收藏次数:0
- 
								文件名称: 附件-995878598785558809890.zip 附件-995878598785558809890.zip
								相关下载
							
						- 门头房成套施工CAD图纸
- 入口门头详图纸
- 门头大样详图纸2018
- 门头钢雨篷CAD施工方案图纸
- 门头钢雨篷施工CAD图纸,共2张
- 09年[]展览馆金字塔门头钢结构外装饰工程建筑施工CAD大样图
- 售楼部门头外立面竣工图纸(6张)
- 售楼部门头外立面竣工CAD图纸
- 配电房建筑结构施工图纸
- 钢结构彩钢房深化设计
- 钢结构垃圾房结构施工图纸
- 回迁房钢结构广告围挡施工图纸
- 钢结构垃圾房结构CAD施工图纸
- 钢结构门面房设计CAD施工图纸
- 实训房钢结构CAD施工图纸.dwg
- 电力站门卫房建筑结构CAD图纸
- 医院锅炉房建筑结构图纸
- 展览馆金字塔门头钢结构外装饰工程建筑施工CAD图纸(平面布置图)
- 钢结构食堂建筑结构CAD施工图纸
- 单层钢结构厂房建筑结构施工CAD图纸
全部评论
						
							评论网友评论仅友表达个人看法,并不表明本站同意其观点,不得发布违反法律法规的内容!
						
						
 
	              	 
	              	 
	              	