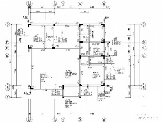
4层独立基础剪力墙结构别墅结构CAD施工图纸
- 发布时间:2023-01-18
- 评论次数:0
- 浏览次数:0
- 文件大小:0.42 MB
- 收藏次数:0
- 
								文件名称: 附件-995877995788977050875.rar 附件-995877995788977050875.rar
								相关下载
							
						- 别墅独立基础CAD施工图纸
- 3层框架结构别墅结构施工图纸(建筑施工CAD图纸独立基础)
- 两层框架剪力墙小别墅结构CAD施工图纸(独立基础)
- 两层框架结构别墅结构设计施工图纸(独立基础)
- 3层钢结构别墅结构设计施工图纸(独立基础)
- 2层异形柱框架结构双拼别墅结构CAD施工图纸(独立基础)
- 异型柱框架结构别墅结构CAD施工图纸(2层、独立基础)
- 框架结构别墅酒店结构CAD施工图纸(2层独立基础带夹层)
- 框架结构酒店别墅结构CAD施工图纸(2层独立基础)
- 3层框剪结构别墅结构CAD施工图纸(独立基础)
- 独立基础异型柱框架结构别墅结构设计CAD施工图纸
- 独立基础框架结构别墅结构设计CAD施工图纸
- 两层独立基础砌体结构别墅结构CAD施工图纸(8度抗震)
- 独立基础轻钢结构别墅结构CAD施工图纸
- 4层框架结构私人别墅建筑结构CAD施工图纸(独立基础)
- 3层框架结构独立基础别墅结构CAD施工图纸(6度抗震)
- 国内3层异形柱框架结构别墅结构CAD施工图纸(独立基础)
- 两层框架结构独立基础小型欧式别墅结构CAD施工图纸
- 独立基础砖混结构私人别墅结构CAD施工图纸(6度抗震)
- 3层独立基础框架结构别墅结构CAD施工图纸
全部评论
						
							评论网友评论仅友表达个人看法,并不表明本站同意其观点,不得发布违反法律法规的内容!
						
						
 
	              	 
	              	 
	              	