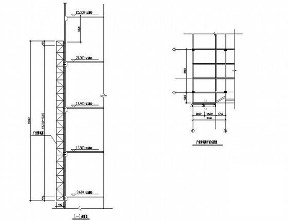
墙面广告牌结构设计施工图纸(4张施工图纸)
- 发布时间:2021-11-30
- 评论次数:0
- 浏览次数:0
- 文件大小:0.28 MB
- 收藏次数:0
-
文件名称:
附件-995877888995770685789.rar
墙面广告牌施工图下载
- 墙面广告牌结构设计图纸(4张图纸)
- 墙面广告牌结构设计CAD图纸
- 外墙面石材幕墙节点CAD图纸
- 墙面节点构造CAD详图纸(二)
- 墙面节点构造CAD详图纸(一)
- 墙面支撑构造CAD详图纸
- 墙面节点构造CAD详图纸
- 墙面节点构造CAD详图纸
- 横铺墙面彩钢板节点图纸.
- 旋转广告牌结构设计施工图纸(2张施工图纸)
- 广告牌结构设计CAD图纸
- 广告牌结构设计CAD图纸
- 街头广告牌结构设计CAD图纸
- 广告牌结构设计CAD图纸
- 广告牌结构设计CAD图纸.dwg
- 广告牌结构设计CAD图纸.dwg
- 钢结构广告牌结构CAD施工图纸(屋顶广告牌)
- 墙面变形缝节点构造详细设计CAD图纸
- 钢结构墙面檩条连接节点详细设计CAD图纸
- 钢结构墙面檩条连接节点详细设计CAD图纸
全部评论
评论网友评论仅友表达个人看法,并不表明本站同意其观点,不得发布违反法律法规的内容!
