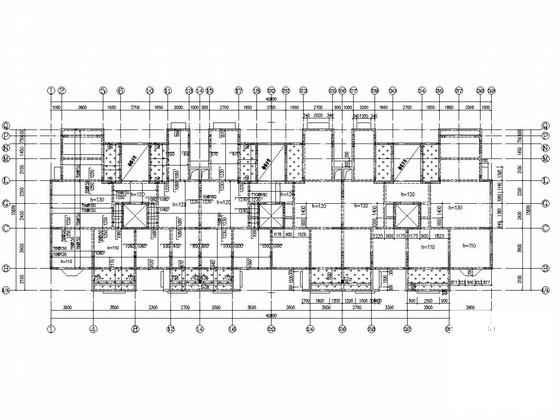
11层剪力墙结构居委会农村住房结构CAD施工图纸
- 发布时间:2023-01-14
- 评论次数:0
- 浏览次数:0
- 文件大小:8.63 MB
- 收藏次数:0
-
文件名称:
附件-995876587876087757805.rar
相关下载
- 两层砖混结构农村自住房结构CAD施工图纸
- 3层新农村住房建筑设计CAD图纸
- 两层砖混结构农村自住房结构CAD施工图纸(平面布置图)
- 17层框架剪力墙结构经济适用住房结构CAD施工图纸
- 11层剪力墙结构保障性住房结构CAD施工大样图
- 22层安置住房剪力墙混凝土结构施工方案图纸
- 高层安置住房剪力墙结构施工方案图纸含建筑
- 26层安置住房剪力墙结构施工方案图纸含建筑
- 部分框支剪力墙保障性住房结构CAD施工图纸
- 17层剪力墙保障性住房项目结构CAD施工大样图
- 17层框架剪力墙结构经济适用住房结构设计施工图纸
- 24层剪力墙结构保障性住房结构施工图纸(CFG桩)(柱下独立基础)
- 11层剪力墙结构保障性住房结构设计施工大样图
- 3层框架结构居委会商业喽电气CAD施工图纸
- 农村住宅结构CAD图纸
- 广丰廉租住房结构设计CAD图纸
- 转住房工程结构设计CAD图纸.dwg
- 5层异形柱框架结构保障性住房结构施工大样图
- 新农村2层钢结构别墅
- 总后小瓦窑住房项目
全部评论
评论网友评论仅友表达个人看法,并不表明本站同意其观点,不得发布违反法律法规的内容!
