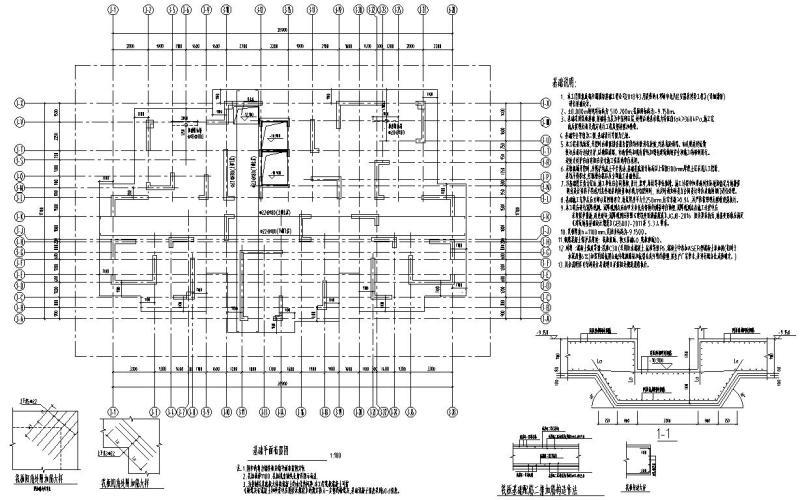
22层安置住房剪力墙混凝土结构施工方案图纸
- 发布时间:2021-12-06
- 评论次数:0
- 浏览次数:0
- 文件大小:3.45 MB
- 收藏次数:0
- 
								文件名称: 附件-996979080979557957.rar 附件-996979080979557957.rar
								剪力墙结构施工方案下载
							
						- 建筑防雷接地施工方案(剪力墙结构)
- 高层剪力墙结构毕业设计方案
- 高层剪力墙结构住宅卸料平台方案_CAD
- 剪力墙住宅结构住宅结构设计方案CAD施工图纸
- 地上25层剪力墙结构住宅楼结构CAD施工方案图纸
- 31层剪力墙结构高层住宅结构CAD施工方案图纸
- 18层剪力墙结构住宅楼结构CAD施工方案图纸
- 16层剪力墙结构住宅楼结构CAD施工方案图纸
- 27层剪力墙结构商住楼结构CAD施工方案图纸
- 18层剪力墙结构住宅楼结构CAD施工方案图纸
- 17层剪力墙结构住宅楼结构CAD施工方案图纸
- 地上17层剪力墙结构住宅楼结构CAD施工方案图纸
- 10层剪力墙结构住宅楼结构CAD施工方案图纸
- 11层剪力墙结构住宅楼结构CAD施工方案图纸
- 20层剪力墙结构住宅楼结构CAD施工方案图纸
- 25层剪力墙结构住宅楼结构CAD施工方案图纸
- 30层剪力墙结构住宅楼结构CAD施工方案图纸
- 地上28层剪力墙结构住宅楼结构CAD施工方案图纸
- 13层框架剪力墙结构宾馆结构CAD施工方案图纸
- 13层框架剪力墙结构宾馆结构CAD施工方案图纸(、37张)
全部评论
						
							评论网友评论仅友表达个人看法,并不表明本站同意其观点,不得发布违反法律法规的内容!
						
						
 
	              	 
	              	 
	              	 
	              	 
	              	