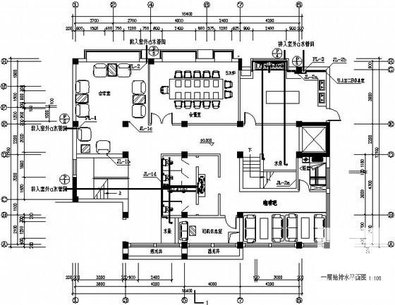
3层休闲会所给排水CAD施工图纸
- 发布时间:2023-01-08
- 评论次数:0
- 浏览次数:0
- 文件大小:7.36 MB
- 收藏次数:0
-
文件名称:
附件-995860799575800855586.zip
相关下载
- 休闲会所电气图纸.dwg
- 高级休闲会所电气CAD图纸
- 3层休闲商业会所给排水CAD施工图纸(室内游泳池)
- 3层休闲会所给排水CAD施工方案图纸
- 8层休闲会所电气设计施工图纸
- 5层休闲会所建筑CAD施工图纸
- 8层海休闲会所给排水暖通电气图纸
- 休闲会所外装幕墙建筑竣工图纸
- 8层休闲会所电气CAD图纸(综合布线系统)
- 休闲会所电气设计图纸.dwg
- 休闲会所中央空调系统设计图纸.dwg
- 休闲会所电气设计图纸.dwg
- 生态休闲园给排水CAD图纸
- 多层休闲娱乐会所及办公区空调通风系统设计施工图纸
- 多层休闲会所建筑结构CAD施工图纸
- 3层娱乐休闲会所强电系统CAD施工图纸(电气设计说明)
- 2层休闲会所建筑结构设计CAD施工图纸
- 3层娱乐休闲会所强电系统CAD施工图纸
- 养生休闲会所舒适性空调系统设计CAD施工图纸(空气源热泵)
- 9层休闲会所空调系统设计CAD施工图纸
全部评论
评论网友评论仅友表达个人看法,并不表明本站同意其观点,不得发布违反法律法规的内容!
