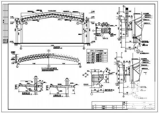
圆管桁架屋面厂房结构设计方案CAD图纸
- 发布时间:2023-01-04
- 评论次数:0
- 浏览次数:0
- 文件大小:0.77 MB
- 收藏次数:0
-
文件名称:
附件-995878879078890959775.rar
相关下载
- 屋面钢结构桁架厂房结构CAD施工图纸()
- 钢结构厂房屋面桁架结构施工方案图纸
- 钢管拱桁架屋顶结构设计方案CAD图纸(屋面檩条布置)
- 3层钢结构厂房桁架屋面CAD施工图纸()
- 圆管拱形桁架钢屋架详细设计CAD图纸
- 篮球馆屋面桁架结构设计图纸
- 钢桁架屋面结构节点详图纸2017
- 大型桁架屋面结构施工图纸.
- 经典圆管拱形桁架钢构棚结构CAD施工图纸(甲级院)
- 单层多连跨钢桁架屋盖结构厂房结构CAD施工图纸(屋面檩条布置)
- 3层钢管桁架框架厂房结构设计方案CAD图纸
- 滑冰场钢屋面桁架平面详图纸
- 管桁架结构空间网架钢结构屋面结构CAD施工图纸.dwg
- 交接大厅屋面结构施工图纸(桁架结构,共5张)
- 钢结构桁架屋面结构节点施工方案图纸
- 大型钢结构仓库桁架屋面结构CAD施工图纸()
- 坡屋面住宅结构设计方案图纸
- 厂房双管桁架钢屋架建筑结构CAD图纸
- 钢管钢桁架厂房结构CAD施工图纸
- 桁架厂房结构设计CAD图纸
全部评论
评论网友评论仅友表达个人看法,并不表明本站同意其观点,不得发布违反法律法规的内容!
