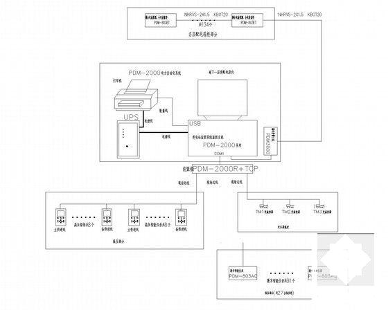
23层国际大酒店强弱电CAD施工图纸93张
- 发布时间:2023-01-04
- 评论次数:0
- 浏览次数:0
- 文件大小:8.58 MB
- 收藏次数:0
-
文件名称:
附件-995855990887775897788.rar
相关下载
- 23层国际大酒店强弱电CAD施工图纸93张
- 国际大酒店空调安装详图纸.
- 国际大酒店给排水设计CAD施工图纸
- 国际大酒店多层客房建筑施工CAD图纸
- 国际大酒店广场CAD施工图纸
- 华信国际大酒店及国际商贸中心CAD施工图纸.dwg
- 国际大酒店热水与空调设计CAD图纸
- 国际大酒店给排水设计CAD图纸
- 国际大酒店空调安装详图(7页图纸).
- 国际大酒店空调系统毕业设计方案
- 国际大酒店幕墙全套CAD大样图
- 德城国际大酒店建筑设计分析.pdf
- 国际大酒店建筑方案文本、模型照片
- 9层国际大酒店建筑施工CAD图纸(效果图纸)
- 33000平米23层国际大酒店中央空调设计施工图纸
- 38985平米地上19层国际大酒店空调施工图纸
- 玄武湖国际大酒店2层接待中心建筑施工CAD图纸
- 国际大酒店2层别墅式客房建筑施工CAD图纸
- 9层四星级国际大酒店建筑施工CAD图纸(人防工程防护)
- 国际大酒店3层客房建筑CAD施工图纸
全部评论
评论网友评论仅友表达个人看法,并不表明本站同意其观点,不得发布违反法律法规的内容!
