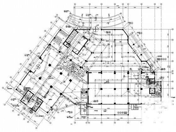
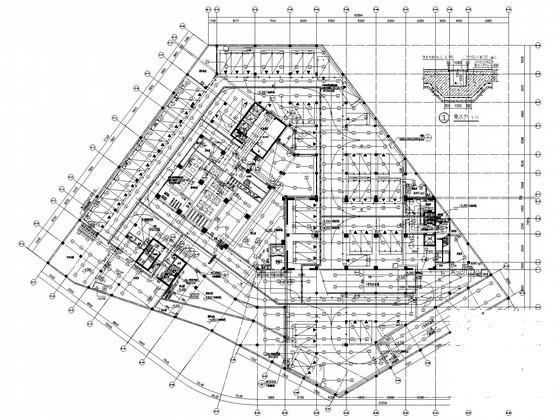
25层酒店消防系统设计CAD施工图纸(电气火灾监控)
- 发布时间:2023-01-04
- 评论次数:0
- 浏览次数:0
- 文件大小:4.72 MB
- 收藏次数:0
-
文件名称:
附件-995856595875878570095.rar
相关下载
- 电气火灾监控CAD图纸
- 电气火灾监控系统CAD图纸
- 漏电火灾监控系统CAD图纸
- 漏电火灾监控系统CAD图纸
- 多层酒店电气CAD施工图纸(电气设计说明)(电视监控系统)
- 电气火灾监控设计CAD图纸(32台TCS01探测器).dwg
- 6层酒店电气设计CAD施工图纸(电视监控系统)
- 新华书店监控、火灾报警图纸.dwg
- 8层酒店电气消防系统CAD施工图纸
- 3层酒店电气消防系统CAD施工图纸()
- 国内5层酒店后勤动力楼电气设计CAD图纸(闭路电视监控)
- 大型高层办公楼电气设计CAD施工图纸(火灾监控系统图)
- 13层四星级酒店电气CAD施工图纸(闭路电视监控)
- 多层酒店电气CAD施工图纸(二级负荷)(电视监控系统)
- 6层酒店电气CAD施工图纸(电视监控系统)
- 3层会议中心电气CAD施工图纸(消防系统原理图纸)(火灾自动报警)
- 26层知名国际大酒店电气设计CAD施工图纸(火灾自动报警)
- 16层酒店电气设计CAD施工图纸(火灾自动报警)
- 9层大型酒店电气设计CAD施工图纸(火灾自动报警)
- 11层快捷酒店电气设计CAD施工图纸(火灾自动报警)
全部评论
评论网友评论仅友表达个人看法,并不表明本站同意其观点,不得发布违反法律法规的内容!
