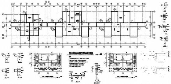
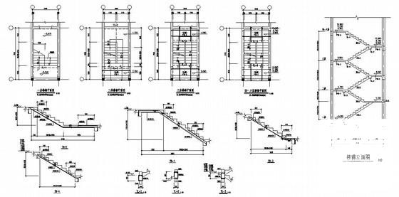
6层砌体住宅楼结构设计CAD图纸(条形基础)(梁板配筋图)
- 发布时间:2022-12-30
- 评论次数:0
- 浏览次数:0
- 文件大小:0.72 MB
- 收藏次数:0
- 
								文件名称: 附件-995879878798665760786.rar 附件-995879878798665760786.rar
								相关下载
							
						- 单层砌体结构粮仓结构CAD施工图纸(毛石基础)(板配筋图)
- 综合高层梁板配筋.dwg
- 地下室筏板基础结构CAD施工图纸(梁配筋图)
- 新农村拆迁安置小区砌体住宅结构CAD施工图纸(条形基础)(二层梁板配筋)
- 基础梁配筋断面构造图纸
- 33层框架结构住宅楼结构CAD施工图纸(桩基础)(梁板配筋图)
- 条形基础配筋详细设计CAD图纸
- 2层砌体结构条形基础茶厂结构CAD施工图纸(6度抗震)(楼梯配筋图)
- 6层条形基础框架保障性住房结构CAD施工图纸(7度抗震)(板配筋图)
- 板,梁开洞配筋大样设计CAD图纸
- 两层框架结构条形基础体育馆结构CAD施工图纸(梁配筋图)
- 框混别墅结构设计cad施工图纸_梁配筋图,板配筋图和柱结构平面图
- 小别墅结构图纸和屋面板配筋图,地梁配筋图,基础配筋图
- 梁配筋详图纸样图
- 单层混凝土结构办公楼结构CAD施工图纸(独立柱基础)(梁板配筋图)
- 独立基础单层框架井口等候室结构CAD施工图纸(7度抗震)(梁板配筋图)
- 四合院结构CAD施工方案图纸(梁板配筋图)
- 5层砌体结构学生宿舍楼结构设计CAD施工图纸(梁板配筋图)
- 8层异形柱框剪结构住宅楼结构CAD施工图纸(梁板配筋图)
- 弧形廊施工详图纸平面图及剖面,基础梁配筋图
全部评论
						
							评论网友评论仅友表达个人看法,并不表明本站同意其观点,不得发布违反法律法规的内容!
						
						
 
	              	 
	              	 
	              	