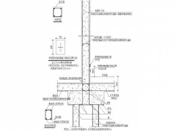
3层钢筋混凝土结构低层住宅楼强弱电CAD施工图纸(等电位连接)
- 发布时间:2022-12-30
- 评论次数:0
- 浏览次数:0
- 文件大小:1.87 MB
- 收藏次数:0
-
文件名称:
附件-995855095755989578056.rar
相关下载
- 等电位连接常用平面CAD图纸
- 工厂车间强电CAD施工图纸(等电位连接)
- 办公楼等电位连接CAD图纸
- 电表箱安装等电位连接以及管线安装
- 等电位联接安装
- 等电位大样CAD图纸
- 等电位联结CAD图纸
- 等电位安装图纸集.
- 古建筑电气CAD施工图纸_古庙电气设计(等电位连接)
- 化工市场电气安装施工方案(等电位连接)
- 总等电位大样CAD图纸
- 等电位联结大样CAD图纸
- 全套等电位CAD图纸大全
- 4层给水管网工程防雷接地及等电位连接系统
- 多层等电位联结平面
- 4层住宅楼电气CAD施工图纸(等电位联结图纸)
- 建筑施工中的防雷、接地与等电位.doc
- 多层住宅楼电气CAD施工图纸(等电位做法)
- 5层消防大队办公楼电气设计CAD施工图纸(等电位连接)
- 给水管网工程照明防雷接地及等电位连接系统设计CAD施工图纸
全部评论
评论网友评论仅友表达个人看法,并不表明本站同意其观点,不得发布违反法律法规的内容!
