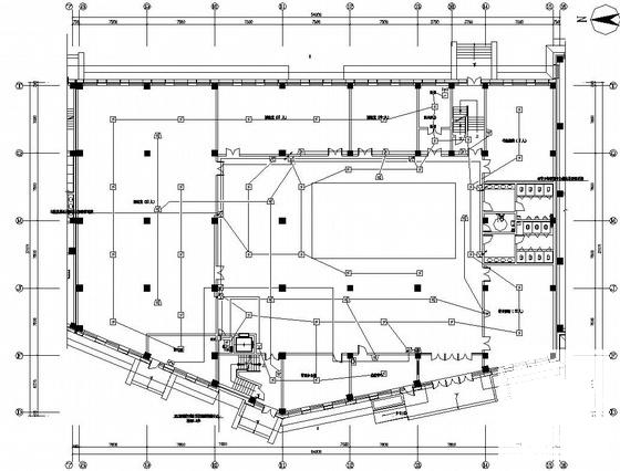
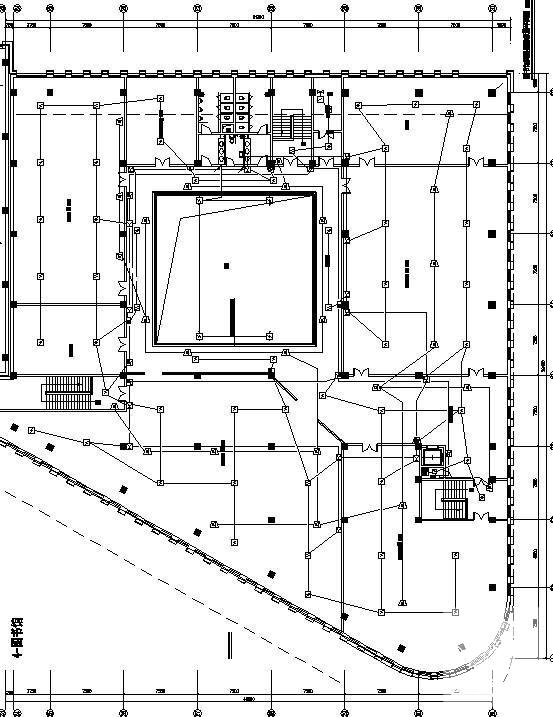
6层文化中心消防电气CAD施工图纸(高27米)
- 发布时间:2022-12-30
- 评论次数:0
- 浏览次数:0
- 文件大小:1.23 MB
- 收藏次数:0
-
文件名称:
附件-995856857877578955685.rar
相关下载
- 5层文化中心消防电气CAD施工图纸
- 番禺市文化中心电气设计
- 番禺市5层框架结构文化中心电气设计CAD图纸(高19.5米)(建筑面积)
- 工业厂房电气设计(高20.4米)(消防用水)
- 部队文化中心幕墙图纸
- 文化中心配电系统CAD图纸
- 中学7层综合教学楼消防电气CAD施工图纸(高20.6米)(火灾自动报警)
- 上7层服务综合楼电气施工图纸(高35.8米)(消防联动控制系统)
- 3层社区文化中心建筑施工CAD图纸
- 文化中心体育馆电气全套图纸(甲级院设计).dwg
- 3层实验中学餐厅电气设计图纸(高10米)(消防联动控制系统)
- 小学电气CAD施工图纸(高12.3米)
- 高供高量配电工程箱式变电站电气CAD图纸
- 嵊泗文化中心幕墙节点详图纸
- 4层文化中心采暖CAD图纸
- 下商场消防CAD图纸(电气施工)
- 高层消防电气施工图纸.
- 南海文化中心建筑方案文本及扩初
- 文化中心结构详大样图
- 天心生态新城城市设计(文化中心)
全部评论
评论网友评论仅友表达个人看法,并不表明本站同意其观点,不得发布违反法律法规的内容!
