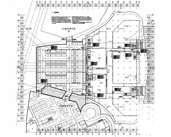
住宅楼地下室项目强弱电CAD施工图纸(地下1层)(火灾自动报警)
- 发布时间:2022-12-30
- 评论次数:0
- 浏览次数:0
- 文件大小:6.83 MB
- 收藏次数:0
- 
								文件名称: 附件-995856077005598985787.rar 附件-995856077005598985787.rar
								相关下载
							
						- 高层酒店式公寓强弱电图纸(知名综合项目)(火灾自动报警系统)
- 大型小区地下室工程电气设计CAD施工图纸(火灾自动报警)
- 大型甲类人防地下室电气CAD施工图纸(火灾自动报警)
- 24层住宅楼强弱电电气CAD施工图纸(火灾自动报警)
- 32层住宅楼强弱电CAD施工图纸(人防)(火灾自动报警)
- 人防地下车库火灾自动报警图纸.dwg
- 住宅楼地下室项目强弱电CAD施工图纸
- 地下2层大型甲类人防地下室电气图纸(固定电站)(火灾自动报警)
- 地上30层住宅楼及地下1层地下车库强弱电CAD施工图纸(甲级设计院)(火灾自动报警)
- 27层住宅楼地下车库电气CAD图纸(火灾自动报警)()
- 项目火灾报警施工CAD图纸
- 住宅楼火灾自动报警平面CAD图纸
- 一类高层商住楼电气CAD施工图纸(地下室)(火灾自动报警)
- 小区地下室人防电气设计CAD施工图纸(火灾自动报警系统)
- 大型住宅小区地下室工程电气设计CAD施工图纸(火灾自动报警)
- 大型地下室电气CAD施工图纸(火灾自动报警系统)(TN-S)
- 两层中学综合馆强弱电CAD施工图纸(火灾自动报警)
- 24层办公楼强弱电系统CAD施工图纸(火灾自动报警)
- 知名高层酒店强弱电CAD施工方案图纸(火灾自动报警系统)
- 17层星级宾馆强弱电CAD施工图纸(火灾自动报警)()
全部评论
						
							评论网友评论仅友表达个人看法,并不表明本站同意其观点,不得发布违反法律法规的内容!
						
						
 
	              	 
	              	 
	              	