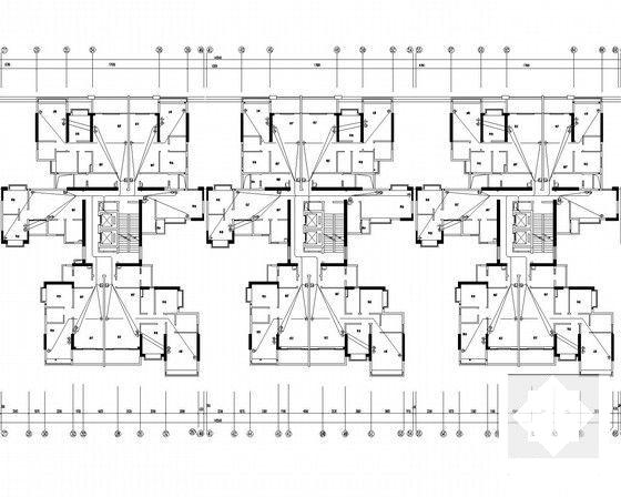
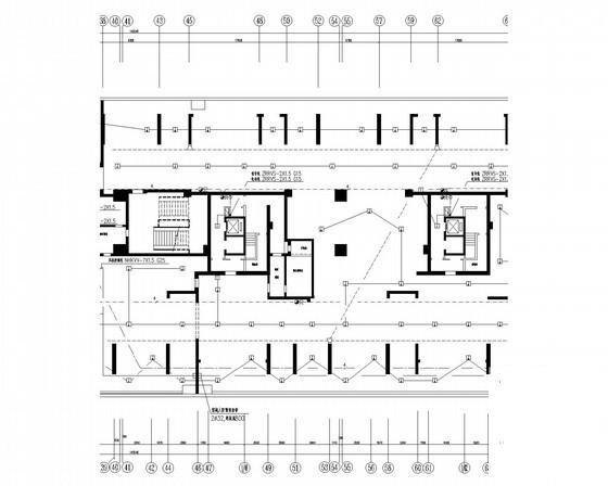
32层住宅楼强电系统CAD施工图纸(高压设计,车库)
- 发布时间:2022-12-30
- 评论次数:0
- 浏览次数:0
- 文件大小:9.39 MB
- 收藏次数:0
-
文件名称:
附件-995856879979758868800.rar
相关下载
- 32层住宅楼强电系统CAD施工大样图54张(高压设计)(dwg)
- 地下1层车库强电系统施工图纸
- 地下车库常高压消火栓系统消防设计cad施工图纸
- 上6层住宅楼强电CAD施工图纸(车库,三级负荷)(防雷接地系统)
- 小区高压系统CAD图纸
- 制氧机高压系统CAD图纸
- 住宅楼地下室项目强电CAD施工图纸(车库)
- 9层21940平米地下车库强电系统施工图纸
- 45层双子星大厦强电系统施工图纸(车库)
- 住宅地下车库强电系统施工图纸(三级负荷)
- 24110平米地下车库强电系统施工图纸
- 29层商住两用楼强电系统施工图纸(车库)
- 9层地下车库强电系统CAD施工图纸(dwg)
- 车库强电系统CAD施工图纸(钢筋混凝土结构)(dwg)
- 一类住宅地下车库强电系统CAD施工图纸()
- 住宅地下车库强电系统CAD施工图纸(TN-S)
- 大型地下商场强电系统CAD施工图纸(车库人防)
- 车库强电cad平面图
- 18层住宅楼强电系统电气图纸
- 住宅楼强电CAD图纸(配电系统)
全部评论
评论网友评论仅友表达个人看法,并不表明本站同意其观点,不得发布违反法律法规的内容!
