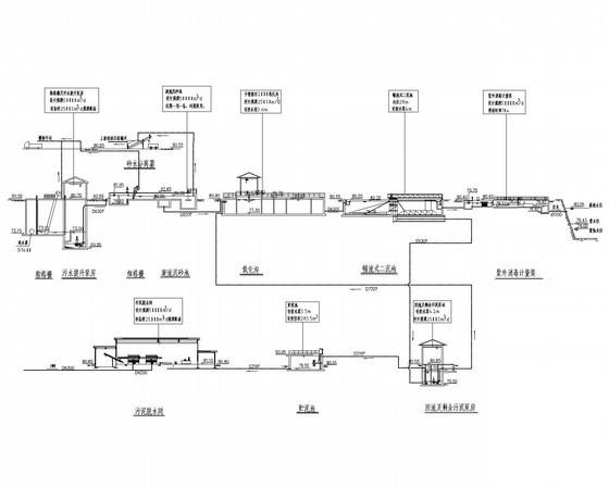
污水处理厂CAD施工图纸(不含设计说明)
- 发布时间:2022-12-20
- 评论次数:0
- 浏览次数:0
- 文件大小:7.62 MB
- 收藏次数:0
- 
								文件名称: 附件-995860908779605760856.rar 附件-995860908779605760856.rar
								相关下载
							
						- 污水处理厂电气CAD施工图纸(电气设计说明)
- 污水处理厂设计施工图纸,含设计说明.dwg
- 污水处理厂套图纸(设计说明).
- 污水处理厂电气初设图纸,含电气设计说明
- 污水处理厂结构设计说明
- 污水处理厂结构设计说明.dwg
- 污水处理厂电气施工图纸
- 污水处理厂CAD施工图纸
- 污水处理厂CAD施工图纸
- 污水处理厂电气施工图纸
- 污水处理厂CAD施工图纸
- 污水处理厂电气施工图纸.
- 污水处理厂污水提升泵房强电施工图纸
- 污水处理厂施工方案
- 16m二沉池CAD施工图纸(不含设计说明,初步设计)
- 城市污水处理厂CASS池图纸
- 污水处理厂强电CAD图纸
- 污水处理厂电气CAD图纸
- 污水处理厂自控总CAD图纸
- 城区污水处理厂设计CAD图纸
全部评论
						
							评论网友评论仅友表达个人看法,并不表明本站同意其观点,不得发布违反法律法规的内容!
						
						
 
	              	 
	              	 
	              	 
	              	 
	              	