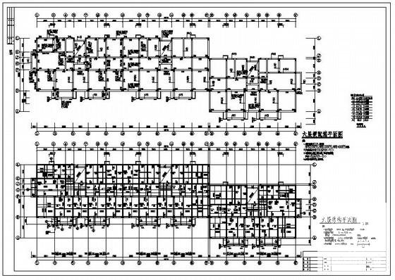
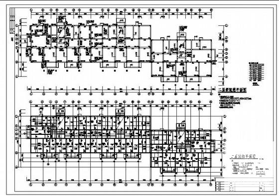
异形柱框架住宅建筑结构设计方案CAD施工图纸
- 发布时间:2022-11-23
- 评论次数:0
- 浏览次数:0
- 文件大小:2.85 MB
- 收藏次数:0
- 
								文件名称: 附件-995876958590886507850.zip 附件-995876958590886507850.zip
								相关下载
							
						- 异形柱框架住宅结构设计方案CAD施工图纸
- 异形柱框架住宅结构CAD施工图纸
- 异形柱框架住宅结构CAD施工图纸
- 异形柱框架住宅结构大样图
- 6层底商住宅楼建筑结构CAD施工图纸(异形柱框架结构)
- 6层异形柱框架住宅楼结构设计方案CAD施工图纸
- 6层异形柱框架住宅结构设计方案CAD施工图纸
- 异形柱框架结构(2016年)
- 高尔夫会所异形柱框架结构设计方案CAD图纸
- 3层异形柱框架别墅结构施工图纸
- 异形柱框架结构CAD施工图纸
- 异形柱框架别墅结构CAD施工图纸
- 3层异形柱住宅结构CAD施工图纸
- 异形柱住宅楼结构CAD施工图纸
- 异形柱框架结构住宅楼结构设计施工图纸
- 7层异形柱框架结构住宅楼结构施工图纸
- 地上7层异形柱框架结构住宅楼结构施工图纸
- 7层异形柱框架剪力墙结构住宅楼结构施工图纸
- 地上3层异形柱框架结构住宅楼结构施工图纸
- 3层异形柱框架结构住宅楼结构施工图纸
全部评论
						
							评论网友评论仅友表达个人看法,并不表明本站同意其观点,不得发布违反法律法规的内容!
						
						
 
	              	 
	              	 
	              	