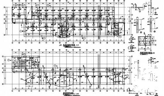
涡阳县11层框剪酒店结构设计CAD图纸(梁平法施工图)
- 发布时间:2022-11-20
- 评论次数:0
- 浏览次数:0
- 文件大小:2.66 MB
- 收藏次数:0
- 
								文件名称: 附件-995876986997978758587.rar 附件-995876986997978758587.rar
								相关下载
							
						- 涡阳县11层框剪酒店结构设计CAD图纸(梁平法施工方案图)
- 高层框剪结构住宅楼结构设计图纸(梁平法配筋图)
- 21层框剪综合楼结构CAD施工图纸(桩基、独基)(梁平法配筋图)
- 12层框剪结构宿舍楼结构CAD施工图纸(条形基础)(梁平法配筋图)
- 30层框剪结构住宅楼结构CAD施工图纸(梁平法配筋图)
- 30层框剪结构高层住宅楼结构CAD施工图纸(梁平法配筋图)
- 11层框剪带闷顶住宅楼结构CAD施工图纸(梁平法配筋图)
- 高层框剪酒店结构设计说明
- 11层桩基础框剪结构住宅楼结构设计CAD施工图纸(梁平法配筋图)
- 框剪社会保障房结构设计方案CAD施工图纸(梁平法配筋图)
- 14层框剪结构住宅楼结构设计CAD施工图纸(梁平法配筋图)
- 6层框剪结构综合办公楼结构设计CAD图纸(梁平法配筋图)
- 梁平法构造说明cad
- 13层框剪结构酒店式公寓结构设计CAD施工图纸
- 11层框剪酒店结构设计CAD施工图纸
- 框剪结构高层住宅楼结构设计CAD图纸(梁平法施工图)
- 12层框剪商用综合楼结构设计图纸(梁平法施工图)
- 11层框剪商住楼结构设计图纸(梁平法施工图)
- 西峡县23层框剪公寓结构设计CAD图纸(梁平法施工图)
- 12层框剪综合楼结构设计图纸(梁平法施工图)
全部评论
						
							评论网友评论仅友表达个人看法,并不表明本站同意其观点,不得发布违反法律法规的内容!
						
						
 
	              	 
	              	 
	              	