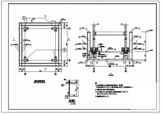
钢框架电梯及屋顶结构设计施工大样图(9张施工大样图)
- 发布时间:2021-11-30
- 评论次数:0
- 浏览次数:0
- 文件大小:0.57 MB
- 收藏次数:0
-
文件名称:
附件-995877795967575876778.zip
电梯结构设计下载
- 钢框架电梯及屋顶结构设计CAD施工大样图
- 电梯井钢构结构设计施工大样图
- 电梯井钢构结构设计CAD施工大样图
- 学生食堂屋顶装饰及钢雨蓬工程大样图
- 学生食堂屋顶装饰及钢雨蓬工程CAD大样图
- 带支撑钢框架钢桁架电梯井结构设计施工图纸
- 带支撑钢框架—钢桁架电梯井结构设计CAD施工图纸
- 钢便桥及平台施工CAD大样图纸
- 钢框架电梯井道结构施工图纸
- 钢框架电梯结构施工图纸(10张图纸)
- 钢框架结构电梯井结构施工图纸
- 电梯井道钢框架结构CAD施工图纸
- 钢框架电梯结构CAD施工图纸
- 工地塔吊及施工电梯全套施工大样图2019
- 医院钢框架观光电梯结构设计施工图纸
- 医院钢框架观光电梯结构设计CAD施工图纸
- 电梯钢结构设计施工大样图,共6张施工大样图
- 钢结构连廊(滑动支座)及观光电梯结构施工大样图
- 钢排架及局部钢框架汽车发动机厂结构CAD施工大样图(建筑大样图韩国独资).dwg
- 3层钢框架结构厂房结构设计施工大样图
全部评论
评论网友评论仅友表达个人看法,并不表明本站同意其观点,不得发布违反法律法规的内容!
