钢结构电梯大样图纸2018

该附件是 钢结构电梯大样图2018(CAD) ,共图纸1张。
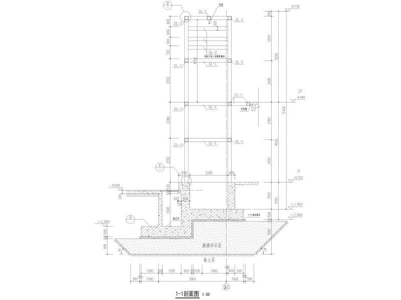
主要内容:电梯各层结构平面图、电梯结构剖面图、电梯基坑及集水井大样、电梯基础平面、电梯钢柱定位及柱脚锚栓布置图...
图纸完整,各个细部构造、节点大样清晰,方便直接选用或者借鉴。
电梯基坑及集水井大样
电梯结构平面图
电梯结构剖面图
以下是附件的其中一部分截图,共3张,您也可以 搜索 更多您想要的资源
  • 电梯钢结构图纸 - 1
    电梯钢结构图纸 - 1
  • 电梯钢结构图纸 - 2
    电梯钢结构图纸 - 2
  • 电梯钢结构图纸 - 3
    电梯钢结构图纸 - 3
以上是部分截图,请下载附件后查看完整高清内容
网站首页  | 
本站所有内容均由网友自主分享,仅供学习和参考,如有侵权内容或者违法行为,请及时联系站长删除。