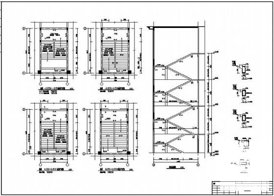
学校4层框架结构教学楼、食堂结构设计图纸(梁平法施工图)
- 发布时间:2022-11-17
- 评论次数:0
- 浏览次数:0
- 文件大小:1.32 MB
- 收藏次数:0
- 
								文件名称: 附件-995877077076005568895.rar 附件-995877077076005568895.rar
								相关下载
							
						- 4层学校教学楼、食堂结构设计CAD施工图纸
- 3层独立基础框架结构教学楼结构CAD施工图纸(梁平法配筋图)
- 6层框架结构教学楼CAD施工图纸(梁平法配筋图)
- 框架结构设计说明及梁平法表示规则说明
- 框架结构设计说明及梁平法表示规则说明.dwg
- 梁平法构造说明cad
- 学校教学楼、宿舍及食堂给排水施工图纸cad平面图
- 3层框架结构生产楼结构设计CAD施工图纸(梁平法配筋图)
- 3层框架结构会所结构设计施工图纸(梁平法配筋图)
- 7层框架结构住宅楼结构设计施工图纸(梁平法配筋图)
- 物业社区营业房框架结构设计施工图纸(梁平法配筋图)
- 地下1层车库框架结构CAD施工图纸(梁平法配筋图)
- 地下商场框架结构体系CAD施工图纸(梁平法配筋图)
- 4层框架教学楼结构CAD施工图纸(建筑图纸)(梁平法配筋图)
- 异型柱框架结构别墅结构设计图纸(梁平法配筋图)
- 3层框架结构小学教学楼结构设计CAD图纸(梁平法施工图)
- 框架结构学校食堂结构设计方案施工图纸(22张)
- 6层框架结构商住楼结构设计(梁平法配筋图)
- 天门市1层框架结构中学食堂建筑施工CAD图纸(独立基础)(梁平法配筋图)
- 4层框架结构职业学校食堂结构施工图纸
全部评论
						
							评论网友评论仅友表达个人看法,并不表明本站同意其观点,不得发布违反法律法规的内容!
						
						
 
	              	 
	              	 
	              	