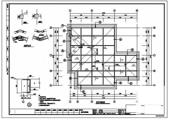
物业社区营业房框架结构设计施工图纸(梁平法配筋图)
- 发布时间:2022-11-23
- 评论次数:0
- 浏览次数:0
- 文件大小:1.8 MB
- 收藏次数:0
-
文件名称:
附件-995876955607799675955.rar
相关下载
- 5层框架结构小区物业管理用房结构施工图纸(梁平法配筋图)
- 公司2层框架库房结构设计图纸(梁平法配筋图)
- 多层混凝土框架厂房结构设计图纸(梁平法配筋图)
- 底层框架带阁楼住宅结构CAD施工图纸(梁平法配筋图)
- 地下1层车库框架结构CAD施工图纸(梁平法配筋图)
- 地下商场框架结构体系CAD施工图纸(梁平法配筋图)
- 下车库结构设计方案CAD图纸(梁平法配筋图)
- 梁平面表示法配筋构造大样cad
- 桩基础框架水泥包装及成品库结构设计施工图纸(梁平法配筋图)
- 俱乐部框架地下车库结构设计CAD施工图纸(桩基础)(梁平法配筋图)
- 3层框架结构生产楼结构设计CAD施工图纸(梁平法配筋图)
- 3层框架结构会所结构设计施工图纸(梁平法配筋图)
- 7层框架结构住宅楼结构设计施工图纸(梁平法配筋图)
- 公司5层框架办公楼结构设计图纸(梁平法配筋图)
- 异型柱框架结构别墅结构设计图纸(梁平法配筋图)
- ]7层框架办公楼结构设计CAD图纸(梁平法配筋图)
- 框架办公楼及门卫结构设计CAD图纸(梁平法配筋图)
- 6层框架结构商住楼结构设计(梁平法配筋图)
- 公安局办公楼结构CAD施工图纸(梁平法配筋图)
- 4层框架教学楼结构CAD施工图纸(建筑图纸)(梁平法配筋图)
全部评论
评论网友评论仅友表达个人看法,并不表明本站同意其观点,不得发布违反法律法规的内容!
