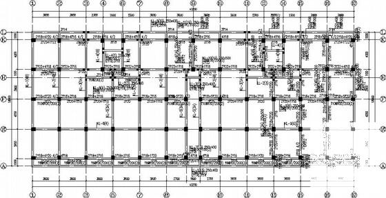
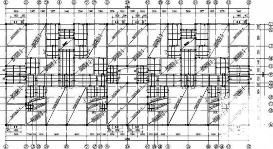
框架抗震墙结构民居改造楼结构设计CAD施工图纸(6度抗震)(平面布置图)
- 发布时间:2022-11-13
- 评论次数:0
- 浏览次数:0
- 文件大小:0.85 MB
- 收藏次数:0
- 
								文件名称: 附件-995876799588687608888.zip 附件-995876799588687608888.zip
								相关下载
							
						- 民居改造框架抗震墙结构CAD施工大样图
- 框架抗震墙商住楼结构CAD施工图纸(平面布置图)
- 底部框架抗震墙住宅结构设计CAD施工图纸(7度抗震)
- 18层桩基础框架抗震墙住宅楼结构CAD施工图纸(6度抗震)(平面布置图)
- 底部框架-抗震墙结构的底层框架及抗震墙构造
- 框架抗震墙结构设计说明
- 框架抗震墙住宅结构设计说明
- 框架抗震墙结构设计说明
- 框架-抗震墙结构设计说明.dwg
- 框架抗震墙结构设计说明.dwg
- 框架抗震墙结构设计说明.dwg
- 框架-抗震墙结构设计说明cad
- 底部框架-抗震墙房屋结构设计中底部钢筋砼抗震墙设计要点.pdf
- 32层抗震墙结构住宅楼结构施工图墙体布置图
- 底框抗震墙结构设计说明_三级抗震工程结构
- 底层框架-抗震墙结构的加固设计与施工
- 底层框架-抗震墙结构的加固设计与施工
- 框架抗震墙商住楼结构设计说明
- 框架抗震墙商住楼结构设计说明.dwg
- 18层框架-抗震墙住宅楼结构设计说明.dwg
全部评论
						
							评论网友评论仅友表达个人看法,并不表明本站同意其观点,不得发布违反法律法规的内容!
						
						
 
	              	 
	              	 
	              	