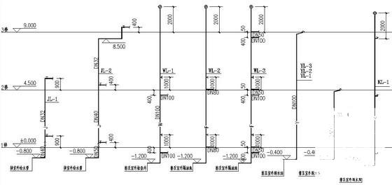
4层中学食堂排水CAD施工图纸
- 发布时间:2022-11-13
- 评论次数:0
- 浏览次数:0
- 文件大小:1.86 MB
- 收藏次数:0
- 
								文件名称: 附件-995860507987065858778.rar 附件-995860507987065858778.rar
								相关下载
							
						- 江津2层中学食堂给排水CAD图纸
- 中学食堂电气CAD图纸
- 中学单层食堂电气CAD图纸
- 中学大食堂电气CAD图纸
- 中学框架食堂结构CAD图纸
- 两层中学食堂给排水CAD施工图纸
- 外国语中学食堂浴室给排水CAD施工图纸
- 3层中学给排水CAD施工图纸(食堂设备房)(建筑面积)
- 中学食堂给排水电气CAD施工图纸(三级负荷)
- 中学食堂给排水电气CAD施工方案图纸(市政污水管网)
- 中学给排水CAD施工方案图纸(食堂设备房)
- 4层中学食堂排水CAD施工方案图纸(室外消火栓系统)
- 3层中学食堂给排水施工图纸cad平面图及系统图
- 中学2层食堂给排水设计CAD图纸(蒸汽直接加热)
- 中学的学生综合食堂给排水平面CAD图纸
- 中学食堂锅炉房施工图纸
- 中学3层食堂建筑施工CAD图纸
- 2层中学食堂建筑CAD施工图纸
- 中学渔门食堂结构CAD施工图纸
- 中学3层食堂建筑施工CAD图纸
全部评论
						
							评论网友评论仅友表达个人看法,并不表明本站同意其观点,不得发布违反法律法规的内容!
						
						
 
	              	 
	              	 
	              	