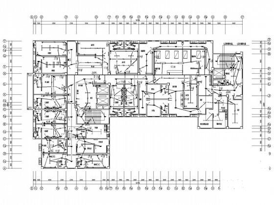
8层医院门诊住院综合楼电气CAD施工图纸(火灾自动报警)
- 发布时间:2022-11-12
 - 评论次数:0
 
- 浏览次数:0
 - 文件大小:5.64 MB
 
- 收藏次数:0
 - 
								文件名称:
 附件-995855050597557795758.rar
							 
								相关下载
							
						- 7层医院门诊住院综合楼强弱电CAD施工图纸(火灾自动报警)
 - 5层医院住院楼电气CAD施工图纸(火灾自动报警系统)
 - 医院门诊部改建电气施工图纸火灾自动报警平面图
 - 医院病房楼与门诊大楼电气设计CAD施工图纸(火灾自动报警)
 - 二级高层医院门诊综合楼电气CAD施工图纸(火灾自动报警)
 - 6层住院部、门诊楼火灾自动报警CAD_PDF,平面图
 - 5层传染病医院住院楼电气CAD施工图纸(火灾自动报警系统)
 - 医院12层门诊楼电气CAD施工图纸(变配电工程)(火灾自动报警系统)
 - 医院病房楼与门诊大楼电气CAD施工图纸(火灾自动报警系统)(TN-C-S)
 - 5层住院楼电气设计CAD施工图纸(火灾自动报警系统)
 - 9层县级医院住院部和手术楼电气设计(火灾自动报警系统)
 - 5层门诊楼电气设计CAD施工图纸(火灾自动报警系统)
 - 5层门诊楼电气CAD施工图纸(火灾自动报警系统)
 - 8层医院门诊住院综合楼电气CAD施工图纸
 - 5层门诊楼电气CAD图纸(火灾自动报警系统)
 - 大型三甲医院住院楼强弱电CAD施工图纸(知名院)(火灾自动报警)
 - 甲级综合医院16层外科住院大楼电气图纸(自动报警系统)
 - 12层医院综合楼强弱电系统电气CAD施工图纸(火灾自动报警)
 - 大型医院病房楼及加速机房电气CAD施工图纸(火灾自动报警)
 - 医院病房楼及机房经典电气CAD施工图纸(火灾自动报警)
 
全部评论
						
							评论网友评论仅友表达个人看法,并不表明本站同意其观点,不得发布违反法律法规的内容!
						
						