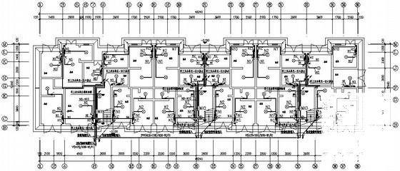
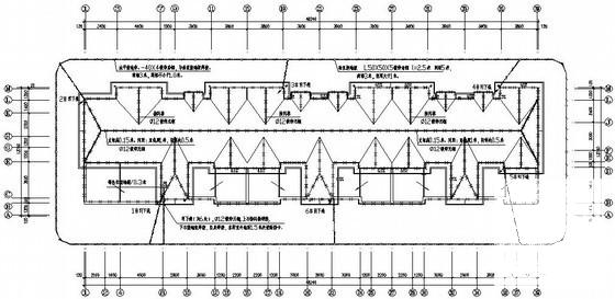
6层钢筋混凝土结构住宅楼电气施工图纸
- 发布时间:2021-11-29
- 评论次数:0
- 浏览次数:0
- 文件大小:0.58 MB
- 收藏次数:0
- 
								文件名称: 附件-995856675876595978758.rar 附件-995856675876595978758.rar
								钢筋混凝土结构施工下载
							
						- 设备基础施工方案(钢筋混凝土结构)
- 超长钢筋混凝土结构无缝设计与施工
- 钢筋混凝土结构保护层施工
- 钢筋混凝土结构基础CAD施工图纸
- 钢筋混凝土厂房结构CAD施工图纸
- 钢筋混凝土结构施工工艺.pdf
- 钢筋混凝土结构施工裂缝分析.pdf
- HEA用于超长钢筋混凝土结构施工.pdf
- 谈谈钢筋混凝土框架结构施工.pdf
- 钢筋混凝土框架结构施工.pdf
- 浅谈钢筋混凝土结构施工控制.pdf
- 钢筋混凝土结构施工图纸说明.
- 钢筋混凝土结构水池结构设计施工图纸
- 钢筋混凝土结构地下消防水池结构施工图纸,共2张
- 单层钢筋混凝土结构地下室结构设计施工图纸
- 钢筋混凝土结构水塔结构施工图纸
- 钢筋混凝土结构循环水池结构施工图纸
- 7层钢筋混凝土结构综合楼结构施工图纸
- 钢筋混凝土结构6500T料仓结构施工图纸
- 100米钢筋混凝土结构烟囱结构施工图纸
全部评论
						
							评论网友评论仅友表达个人看法,并不表明本站同意其观点,不得发布违反法律法规的内容!
						
						
 
	              	 
	              	 
	              	