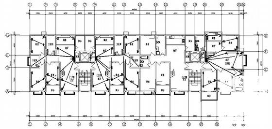
34.89米11层框架剪刀墙结构住宅楼电气CAD施工图纸(综合布线系统)
- 发布时间:2022-11-10
- 评论次数:0
- 浏览次数:0
- 文件大小:1.09 MB
- 收藏次数:0
- 
								文件名称: 附件-995856898887576776868.rar 附件-995856898887576776868.rar
								相关下载
							
						- 综合布线系统图纸.
- 6层中学电气施工CAD图纸(综合布线系统)
- 农行电气CAD施工图纸(综合布线系统)
- 公司厂区电气CAD施工图纸(综合布线系统)
- 别墅电气施工CAD图纸,含综合布线系统设计
- 小区18层住宅楼电气CAD施工图纸(综合布线系统)
- 国内4层住宅楼电气设计CAD施工图纸(综合布线系统)
- 高层住宅楼电气设计CAD施工图纸(综合布线系统)
- 32层小区住宅楼电气CAD施工图纸(综合布线系统)
- 6层住宅楼电气CAD施工图纸(综合布线系统)
- 7层住宅楼电气CAD施工图纸(综合布线系统)
- 6层住宅楼电气CAD施工图纸(综合布线系统)
- 住宅楼电气CAD施工图纸(综合布线系统)
- 小区18层住宅楼电气CAD施工图纸(综合布线系统)
- 6层住宅楼电气CAD施工图纸(综合布线系统)
- 国内4层住宅楼电气CAD施工图纸(综合布线系统)
- 9层住宅楼电气CAD施工图纸(综合布线系统)
- 5层住宅楼电气设计CAD施工图纸(综合布线系统)
- 小区多层住宅楼电气设计CAD施工图纸(综合布线系统)
- 综合布线系统CAD图纸
全部评论
						
							评论网友评论仅友表达个人看法,并不表明本站同意其观点,不得发布违反法律法规的内容!
						
						
 
	              	 
	              	 
	              	