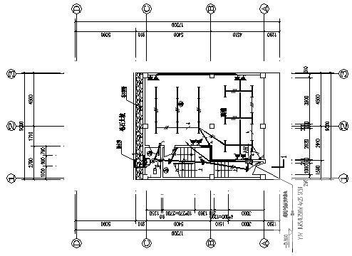
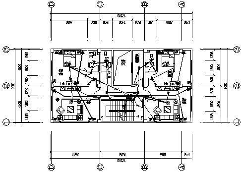
广南5层住宅楼建筑电气CAD施工图纸
- 发布时间:2022-11-10
- 评论次数:0
- 浏览次数:0
- 文件大小:0.62 MB
- 收藏次数:0
- 
								文件名称: 附件-995856686889859859780.zip 附件-995856686889859859780.zip
								相关下载
							
						- 衡昆国道主干线富宁至广南公路隧道CAD施工方案图纸设计
- 衡昆国道主干线富宁至广南公路隧道CAD施工方案图纸设计
- 32层住宅楼建筑电气全套图纸.dwg
- 高层住宅楼建筑电气设计.dwg
- 单层别墅建筑C型住宅楼电气施工预埋图纸
- 17层高层住宅楼建筑电气设计施工图纸
- 5层砖混住宅楼建筑结构电气CAD施工图纸
- 上30层住宅楼建筑电气CAD施工图纸(一类高层)
- 普通15层住宅楼建筑电气CAD施工图纸(二级负荷)
- 小区19层住宅楼建筑电气设计CAD施工图纸
- 一类高层底商住宅楼建筑电气CAD施工图纸
- 4层住宅楼建筑群电气设计CAD施工图纸
- 12层住宅楼建筑电气CAD施工图纸(办公商业人防)
- 两层别墅建筑D型住宅楼电气施工预埋CAD图纸
- 12层住宅楼建筑电气设计CAD施工图纸
- 小区建筑两栋高层住宅楼电气CAD施工图纸
- 多层洋房住宅楼建筑电气CAD施工图纸
- 4层住宅楼建筑电气设计CAD施工图纸(接线系统图)
- 6层框架剪力墙结构住宅楼建筑电气CAD施工图纸
- 17层住宅楼电气CAD施工图纸(二类高层建筑)
全部评论
						
							评论网友评论仅友表达个人看法,并不表明本站同意其观点,不得发布违反法律法规的内容!
						
						
 
	              	 
	              	 
	              	