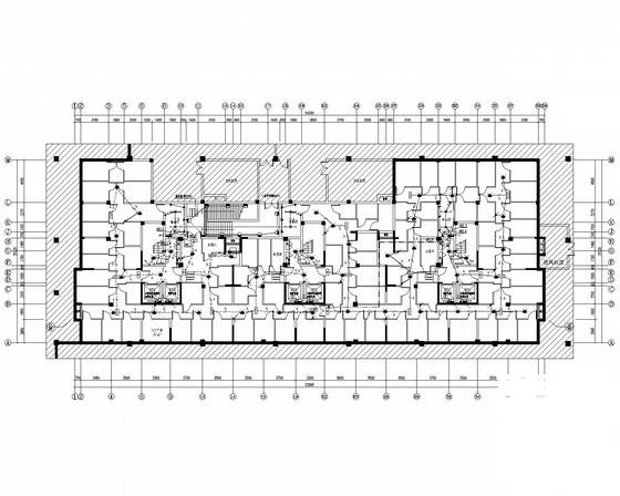
16层层高档住宅楼电气CAD施工图纸
- 发布时间:2022-11-04
- 评论次数:0
- 浏览次数:0
- 文件大小:1.32 MB
- 收藏次数:0
-
文件名称:
附件-995855879090797587885.zip
相关下载
- 17层层高档住宅楼给排水设计CAD图纸
- 16层层综合楼电气CAD施工图纸
- 16层层综合楼电气设计CAD施工图纸(消防报警及联动)
- 高档小区16层住宅楼建筑施工CAD图纸(剪力墙结构)
- 11层层住宅楼电气CAD施工图纸(甲级院设计)
- 上25层层住宅楼电气CAD施工图纸(一类高层建筑)
- 10层层住宅楼建筑CAD施工图纸
- 大型10层层住宅楼建筑CAD施工图纸
- 11层高档住宅楼社区电气CAD施工图纸(高32.42米)
- 一类高层塔式高档住宅楼电气CAD施工图纸
- 中央广场37层高档住宅楼电气CAD施工图纸
- 高档社区6层住宅楼电气CAD施工图纸(甲级院)
- 高档小区高层住宅楼电气CAD施工图纸(甲级院设计)
- 框架结构高档16层酒店办公综合楼建筑施工CAD图纸
- 17层层酒店空调图纸
- 高档商场电气照明平面图纸
- 3层高档住宅楼建筑电气图纸(三级负荷)
- 2层高档别墅电气全套
- 现代欧式10层层住宅楼方案设计(带地下车库)
- 18层层商住综合楼电气CAD图纸
全部评论
评论网友评论仅友表达个人看法,并不表明本站同意其观点,不得发布违反法律法规的内容!
