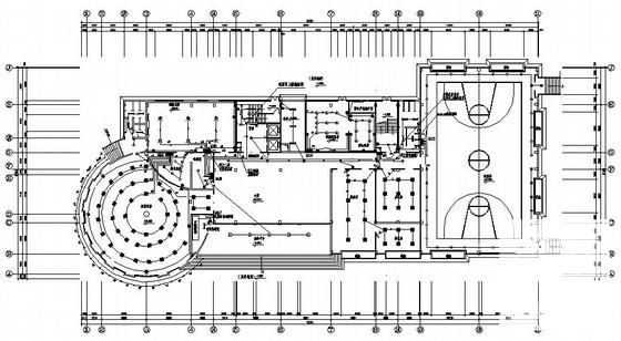
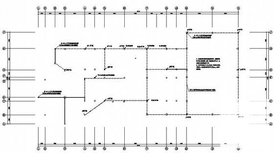
11层办公大楼电气CAD图纸
- 发布时间:2022-11-04
- 评论次数:0
- 浏览次数:0
- 文件大小:2.35 MB
- 收藏次数:0
- 
								文件名称: 附件-995856708575098680855.rar 附件-995856708575098680855.rar
								相关下载
							
						- 办公大楼电气施工CAD图纸
- 办公大楼电气施工图纸.
- 办公大楼全套电气施工图纸(29张).
- 15层办公大楼电气CAD施工图纸
- 9层办公大楼电气CAD施工图纸
- 7层办公大楼电气CAD施工图纸()
- 11层办公大楼电气CAD施工图纸()
- 办公大楼电气施工设计CAD图纸
- 办公大楼电气CAD施工图纸
- 办公大楼强弱电气施工CAD图纸
- 城市6层办公大楼电气施工CAD图纸
- 办公大楼全套电气施工图纸.
- 移动办公大楼电气设计方案
- 国内办公大楼精装修电气施工图纸
- 16层办公大楼智能监控系统电气施工图纸
- 办公大楼一至5层电气图(15页CAD图纸)(dwg)
- 7层办公大楼电气设计CAD施工图纸
- 18层一类办公大楼电气CAD施工图纸(火灾自动报警)
- 5层办公大楼电气设计CAD施工图纸
- 7层办公大楼电气CAD施工图纸(49张)(紧急广播系统)
全部评论
						
							评论网友评论仅友表达个人看法,并不表明本站同意其观点,不得发布违反法律法规的内容!
						
						
 
	              	 
	              	 
	              	