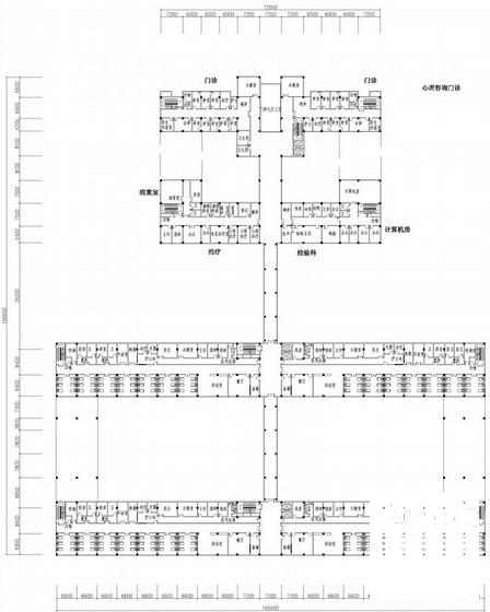
4层精神专科医院建筑方案设计图纸(500床规模)(平面布置)
- 发布时间:2022-11-04
- 评论次数:0
- 浏览次数:0
- 文件大小:1.07 MB
- 收藏次数:0
-
文件名称:
附件-995856870780009787766.rar
相关下载
- 3层300床规模精神卫生专科医院建筑方案设计图纸(面积17121平米)
- 5层150床规模精神卫生专科医院建筑图纸(现代风格,结构CAD施工图纸)
- 5层300床规模精神卫生专科医院建筑CAD图纸(钢筋混凝土结构)
- 30183平米5层精神卫生专科医院建筑方案设计初设大样图
- 8856平米3层精神卫生专科医院建筑方案设计初设大样图
- 精神专科医院建筑设计方案参考设计要点.pdf
- 城市4层精神病院门诊楼建筑方案设计
- 5层专科医院建筑扩初CAD图纸
- 5层专科医院建筑施工CAD图纸(短肢剪力墙结构)
- 5层专科医院建筑扩初CAD初设图纸
- 3层度假双拼别墅建筑方案设计CAD初设图纸(500平方米)
- 框架结构2层商场建筑施工CAD图纸(中型规模)(卫生间详图)
- 2层商场建筑施工图纸(中型规模),剖面图
- 大规模复合型社区建筑设计分析.doc
- 500KV变电站主接线及总平面布置CAD图纸
- 人民医院医疗综合大楼建筑扩初CAD图纸(3075床)
- 220吨流化床系统CAD图纸全套(dwg)
- 碎石床人工湿地工艺施工图纸
- 碎石床人工湿地工艺设计施工图纸.
- 5层框架结构精神病疗养院建筑扩初图纸
全部评论
评论网友评论仅友表达个人看法,并不表明本站同意其观点,不得发布违反法律法规的内容!
