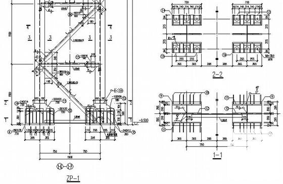
189X108多跨重型格构式厂房结构图纸
- 发布时间:2022-11-04
- 评论次数:0
- 浏览次数:0
- 文件大小:5.79 MB
- 收藏次数:0
-
文件名称:
附件-995878578796980806976.zip
相关下载
- 189X108多跨重型格构式厂房结构施工图纸
- 重型格构柱门式钢架厂房结构CAD施工图纸(独立基础)
- 重型格构柱门式钢架厂房结构CAD施工图纸
- 重钢格构柱单层门式钢架结构厂房
- 15M双联跨轻型格构式门式钢架厂房结构设计图纸
- 格构式门式刚架结构设计
- 重钢格构柱单层门式钢架结构厂房结构设计图纸
- 门式刚架节点详细设计CAD图纸之格构式门式刚架(结构)
- 厂房格构柱节点构造CAD详图纸
- 厂房格构柱节点构造CAD详图纸
- 钢结构格构式柱门式钢架结构施工CAD详图纸(有吊车)
- 重型吊车门式刚架钢结构厂房设计
- 35m格构式门式刚架结构图纸
- 钢结构节点选之格构式门式刚架(9页CAD图纸)
- 钢结构节点精选之格构式门式刚架_CAD
- 山岳缆车救援塔架结构CAD施工图纸(格构式钢结构)
- 多跨钢结构厂房结构CAD施工图纸()
- 多跨钢结构厂房结构CAD施工图纸()
- 多跨钢结构厂房结构CAD施工图纸()
- 35m格构式门式刚架设计图纸
全部评论
评论网友评论仅友表达个人看法,并不表明本站同意其观点,不得发布违反法律法规的内容!
