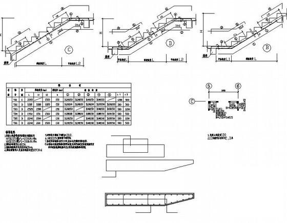
4层框架结构办公楼结构CAD施工图纸(基础平面图)
- 发布时间:2022-11-01
- 评论次数:0
- 浏览次数:0
- 文件大小:0.4 MB
- 收藏次数:0
- 
								文件名称: 附件-995877058988997076707.rar 附件-995877058988997076707.rar
								相关下载
							
						- 5层框架结构办公楼结构设计图纸(基础平面图)
- 2层框架结构别墅结构CAD施工图纸(基础平面图)
- 3层框架结构住宅楼结构施工图基础平面图
- 31层框架结构办公楼结构施工图纸平面图
- 框架结构办公楼结构设计施工图纸(独立基础)
- 5层框架结构办公楼结构施工图纸(筏板基础)
- 5层框架结构办公楼结构CAD施工图纸(桩基础)
- 4层框架结构办公楼结构CAD施工图纸(筏型基础)
- 3层框架结构办公楼结构CAD施工图纸(独立基础)
- 6层框架结构办公楼结构CAD施工图纸(独立基础)
- 6层框架结构办公楼结构CAD施工图纸(桩基础)
- 4层框架结构办公楼结构CAD施工图纸(独立基础)
- 独立基础钢框架结构行政中心办公楼结构CAD施工图纸
- 6层桩基础框架结构办公楼结构CAD施工图纸
- 7层独立基础框架结构办公楼结构CAD施工图纸
- 5层独立基础框架结构办公楼结构CAD施工图纸
- 5层桩基础框架结构办公楼结构CAD施工图纸
- 4层桩基础框架结构办公楼结构CAD施工图纸
- 3层框架结构办公楼结构CAD施工图纸(独立基础)
- 框架结构办公楼结构CAD施工图纸(4层桩基础)
全部评论
						
							评论网友评论仅友表达个人看法,并不表明本站同意其观点,不得发布违反法律法规的内容!
						
						
 
	              	 
	              	 
	              	