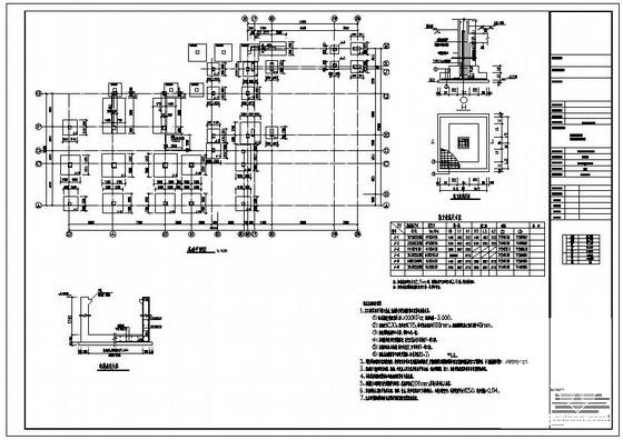
6层框架试验办公楼结构设计方案CAD图纸
- 发布时间:2022-11-01
- 评论次数:0
- 浏览次数:0
- 文件大小:0.49 MB
- 收藏次数:0
- 
								文件名称: 附件-995877099590708070778.rar 附件-995877099590708070778.rar
								相关下载
							
						- 6层框架试验办公楼结构设计CAD施工图纸
- 国内办公楼结构工程试验方案cad
- 高校试验楼毕业设计方案
- 高校试验楼毕业设计方案
- 《结构试验与检测加固》试验报告
- 6层框架结构试验楼结构CAD图纸
- 框架结构办公楼毕业设计方案(建筑、结构图纸)
- 5层框架结构办公楼结构毕业设计方案图纸
- 5层框架结构办公楼结构设计方案CAD图纸
- 多层框架结构办公楼结构设计方案CAD图纸
- 建筑结构试验试题和答案
- 纯钢框架办公楼毕业设计方案
- 国内框架结构3层农业生态工程试验基地设计CAD图纸
- 学院试验大楼毕业设计方案(施工进度计划)
- 2层试验楼建筑设计方案.dwg
- 框架办公楼毕业设计方案(计算书,建筑、结构施工图纸)
- 公司5层框架结构办公楼毕业设计方案图纸
- 框架结构办公楼毕业设计方案(计算书及图纸)
- 框架结构办公楼毕业设计方案(全套图纸以及计算书)
- 多层框架结构办公楼毕业设计方案图纸
全部评论
						
							评论网友评论仅友表达个人看法,并不表明本站同意其观点,不得发布违反法律法规的内容!
						
						
 
	              	 
	              	 
	              	