占地129平方米3层独栋别墅建筑设计施工图纸

  • 建筑高度类型: 多层建筑

  • 外立面材料:幕墙,墙砖

  • 图纸设计深度: 施工图

  • 图纸设计流派:现代

  • 图纸设计格式:JPG,天正建筑CAD 7.0,CAD2000

  • 效果图 :有

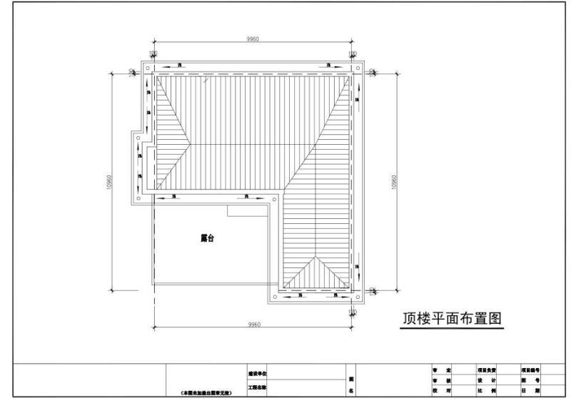
本户型为三层 独栋别墅 ,占地面积129平方米,建筑高度10.65米。一层设有客厅、餐厅、厨房、主卧室、卧室、卫生间;二层设有客厅、主卧室、卧室2间、卫生间2间;三层设有主卧室、卧室2间、卫生间2间、一个大露台;

本户型外观造型简洁大方,色彩明快,功能分区合理,房间尺度设计适宜,采光通风良好,富有时代气息。

门前宽9.96米*进深12.96米

效果图

别墅立面图

顶楼 平面布置图

二层平面图

立面图

一层平面布置图


以下是附件的其中一部分截图,共6张,您也可以 搜索 更多您想要的资源
  • 别墅建筑设计施工图 - 1
    别墅建筑设计施工图 - 1
  • 别墅建筑设计施工图 - 2
    别墅建筑设计施工图 - 2
  • 别墅建筑设计施工图 - 3
    别墅建筑设计施工图 - 3
  • 别墅建筑设计施工图 - 4
    别墅建筑设计施工图 - 4
  • 别墅建筑设计施工图 - 5
    别墅建筑设计施工图 - 5
  • 别墅建筑设计施工图 - 6
    别墅建筑设计施工图 - 6
以上是部分截图,请下载附件后查看完整高清内容
网站首页  | 
本站所有内容均由网友自主分享,仅供学习和参考,如有侵权内容或者违法行为,请及时联系站长删除。