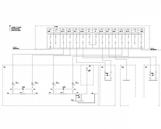
小型加工工厂电气设计CAD施工图纸
- 发布时间:2022-10-29
- 评论次数:0
- 浏览次数:0
- 文件大小:0.37 MB
- 收藏次数:0
-
文件名称:
附件-995856707898570686695.rar
相关下载
- 服装加工厂电气设计.dwg
- 小型加工工厂电气CAD施工图纸(10kv变配电系统)
- 加工厂房配电CAD图纸
- 工厂加工车间电气CAD施工图纸(施工说明)
- 工厂加工车间电气CAD施工图纸
- 机械加工厂房结构CAD施工图纸
- 机械加工厂房电气施工图纸
- 纸箱加工厂给排水CAD施工图纸
- 汽车制造工厂加工厂房建筑结构CAD施工图纸
- 汽车制造工厂加工厂房建筑结构施工CAD图纸
- 小型工厂低压配电图纸
- 筛分拌和系统及加工厂结构CAD图纸
- 加工厂锅炉车间吊车梁详图纸.
- 工厂车间电气设计图纸.
- 加工车间电气设计CAD施工图纸.dwg
- 果汁加工厂污水处理站安装施工图纸
- 独立基础机械加工厂房结构设计施工图纸
- 水果深加工厂消防水泵房结构施工图纸
- 单层刚结构茶叶加工厂房建筑施工图纸
- 两层牛肉加工厂房电气施工图纸
全部评论
评论网友评论仅友表达个人看法,并不表明本站同意其观点,不得发布违反法律法规的内容!
