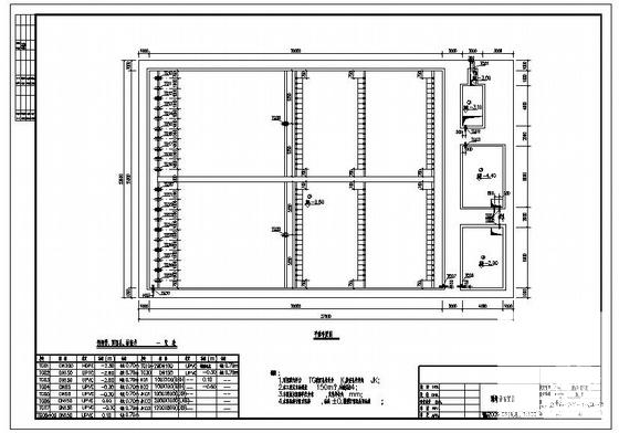
工业厂房150方污水处理池结构设计图纸(人工湿地)
- 发布时间:2022-10-29
- 评论次数:0
- 浏览次数:0
- 文件大小:0.45 MB
- 收藏次数:0
-
文件名称:
附件-995878970756800877757.rar
相关下载
- 小型人工湿地CAD图纸
- 人工湿地污水处理工程CAD施工图纸
- 污水处理厂人工湿地方案工艺流程CAD图纸
- 人工湿地污水处理工程施工图纸.dwg
- 碎石床人工湿地工艺施工图纸
- 波形潜流人工湿地(W-SFCW)图纸.
- 碎石床人工湿地工艺设计施工图纸.
- 人工湿地污水处理工程施工图纸平面布置图
- 工业园污水处理厂施工图纸(生化综合池快滤池接触池)
- 工业园污水处理厂CAD施工图纸(生化综合池快滤池接触池)
- 农村污水人工湿地处理工程CAD施工图纸
- 波形潜流人工湿地(W-SFCW)CAD施工图纸
- 水源地污染治理工程人工湿地CAD施工方案图纸
- 县主动增氧型净化池+人工湿地处理农村生活污水工程施工图纸
- 县主动增氧型净化池人工湿地处理农村生活污水工程CAD施工图纸
- 环境院标准CAD图纸集-人工湖、旱池儿童沙池做法
- 单层厂房污水处理厂紫外消毒池结构CAD施工图纸
- 工业厂房日处理450立方米污水处理池CAD施工图纸(建筑设计说明)
- 工业厂房日处理850立方米污水处理池CAD施工图纸(建筑设计说明)
- 单层工业厂房结构设计CAD图纸.dwg
全部评论
评论网友评论仅友表达个人看法,并不表明本站同意其观点,不得发布违反法律法规的内容!
